400㎡别墅混搭风格漫山香墅
发布时间:
2017年06月21日
小区:漫山香墅 面积:400㎡ 户型:别墅 风格:混搭风格
设计说明
家庭第一居所
家庭结构:夫妇二人,一个孩子,老人经常来居住
空间氛围:中式、简美、现代混搭,色彩跳跃,舒适温馨
储物空间尽可能多
解决三代人的使用功能和审美需求,既要保证私密性又要有利于成员间的互动
关注孩子的心理健康和人身安全
户型解析
解决三代人的使用功能和审美需求,既要保证私密性又要有利于成员间的互动
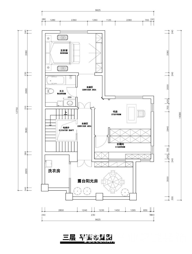
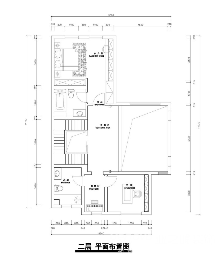
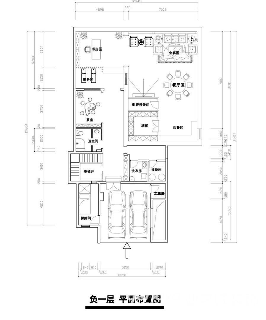
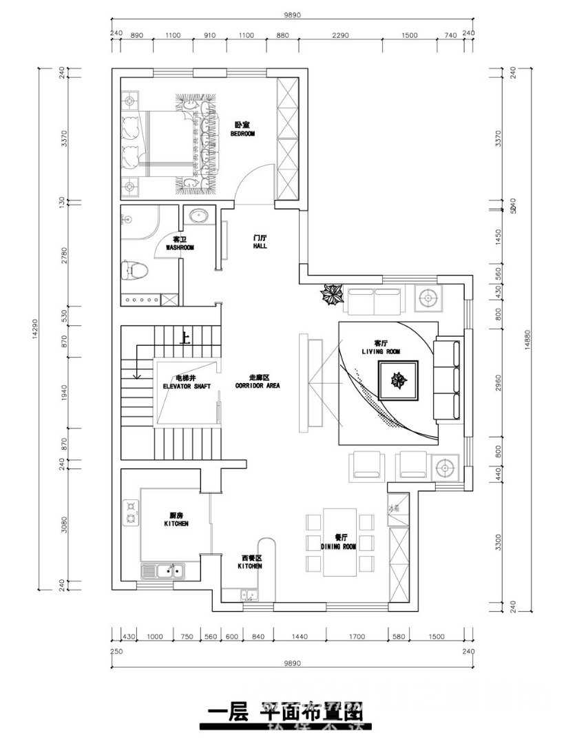
户型图

休闲区

客厅






卧室

餐厅


儿童房

玄关


书房





京公安网备11010502040911