200㎡四居美式风格棕榈长滩
发布时间:
2017年06月21日
小区:棕榈长滩 面积:200㎡ 户型:四居 风格:美式风格
设计说明
棕榈长滩美式风格设计案例,本案采用美式设计风格,利用唯美大气的设计手法,使房间在彰显稳重大气的同时,尽显华丽的同时让业主 感觉使用舒适。
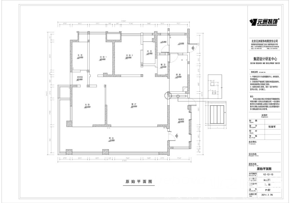
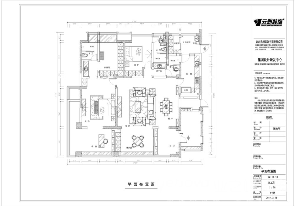
户型图

客厅



玄关

卧室

棕榈长滩美式风格设计案例,本案采用美式设计风格,利用唯美大气的设计手法,使房间在彰显稳重大气的同时,尽显华丽的同时让业主 感觉使用舒适。





