168㎡三居保利花园
发布时间:
2017年06月19日
小区:保利花园 面积:168㎡ 户型:三居 风格:
设计说明
至半开,茶饮半盏,恰如其分的情意,便是最好的境界。灵魂与灵魂的相遇,便是最好的懂得。
沐浴着金色的北美阳光,在湛蓝的天空绿色草地上快乐的奔跑,最美海岸,除了沿路海天一色外、还可看到独具代表性的孤寂柏树、槐树。
沿途可一睹世界最高贵奢华的沿海高尔夫球场,大洋与大陆在此交融,领略让人窒息的美景。
雅居乐的原始空间比较开阔、大气、利用层高的优势首先进入的是前厅空间,利用层高的优势设计了一个美式高柜,既满足居家的结合实用性及结合了空间让前厅更为扎实,形式感更强,美式换鞋凳的放置使得业主进门之前便能解决更衣,换鞋所有的功能要求。
进入大门后,映入眼帘的是玄关区,美式玄关是整个住宅的灵魂所在,点睛之笔,扎实完整的玄关柜上饰品与像框错落摆放,有层次,有生活。
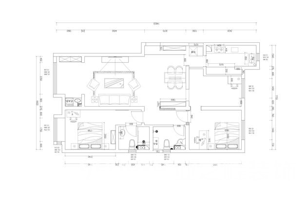
户型图

阳台


客厅




玄关


餐厅







京公安网备11010502040911