165㎡三居北欧风格保利花园
发布时间:
2017年06月19日
小区:保利花园 面积:165㎡ 户型:三居 风格:北欧风格
设计说明
春天来了,
给自己一场肆意的度假,
度假的意义就在于,
身体和心灵都能够得到肆意的放松。
每一个慢下来倒追时间的人,
松弛慵懒是生活写给他的小情歌。
日落于两百公里的黄金海岸线,
有婆娑的椰子树,钴蓝色的大海,摇晃的吊床,
还有悦耳的音乐在鸡尾酒里苏醒,
是每个人该拥有的非常假日!
在这一片日夜守候着海天的度假天堂里,似乎永远都有意料之外又在情理之中的新鲜事。湖畔的含氧空气充斥着屋内的北欧风情,原始古朴的生活元素点缀丰富的娱乐野趣。原木藤麻雏菊野花,暖色调与光感呼应,跳跃零星几抹蓝绿色。身在尘庐,也能感受大自然的恩赐。
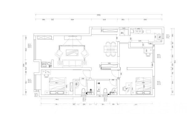
户型图

客厅


卧室


书房

餐厅

儿童房





京公安网备11010502040911