207㎡四居简欧风格香都玖墅
发布时间:
2017年06月17日
小区:香都玖墅 面积:207㎡ 户型:四居 风格:简欧风格
设计说明
本案例为三口幸福之家,围绕“轻奢时代”为主题,将古典欧式与现代相结合,以简洁明快的设计风格为主调,在总体布局方面满足业主生活上的需求。
所有家具式样精炼、简朴、雅致;作工讲究,装饰文雅,曲线流畅,显得更加轻盈优美。地面采用石材拼花,用石材天然的纹理和自然的色彩来修饰人工的痕迹。
卧室适度的软装饰品也使家居空间不乏活泼气息,使人在空间中得到精神和身体上的放松,并且紧跟着时尚的步伐。
卧室温和的空间色调,经典的家具结构,典雅的空间格调,那份恬静空间氛围,或是心灵与空间的联系。
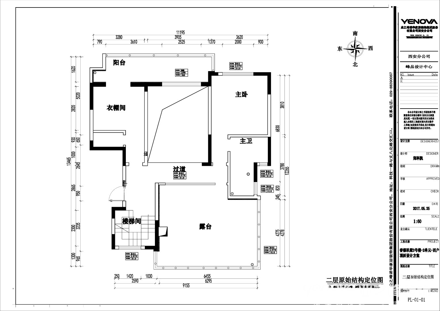
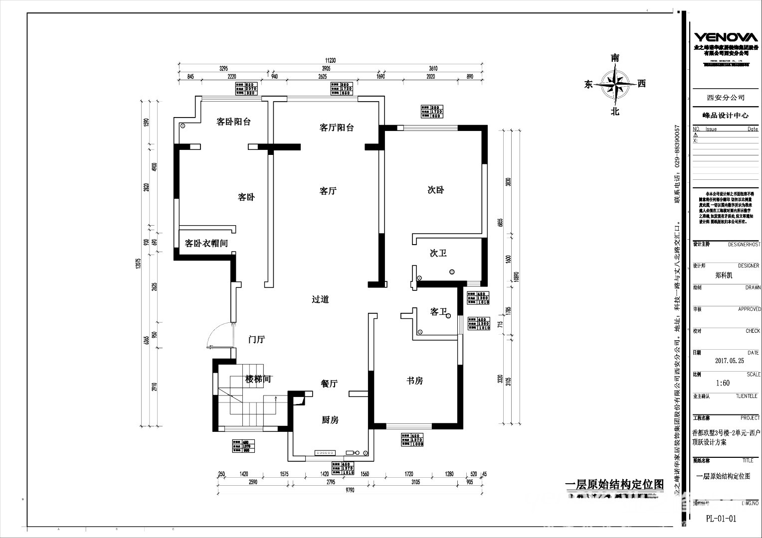
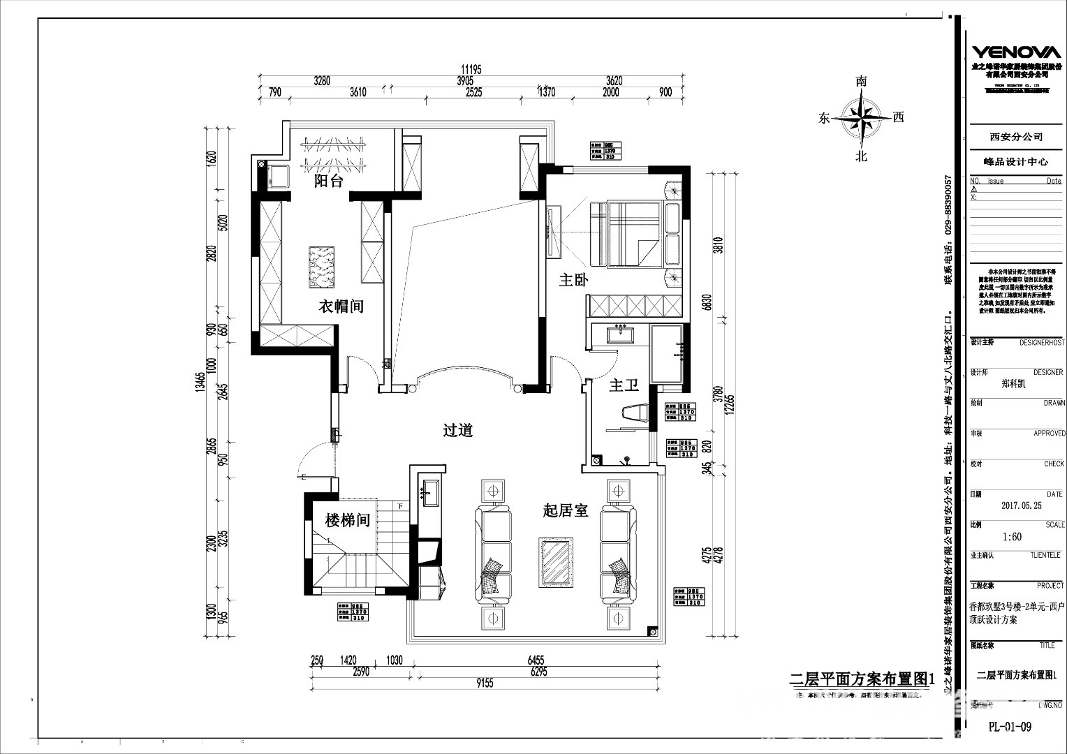
户型图

卧室


客厅








厨房





京公安网备11010502040911