145㎡三居简欧风格李沧万达广场
发布时间:
2017年06月08日
小区:李沧万达广场 面积:145㎡ 户型:三居 风格:简欧风格
设计说明
户型优缺点分析:
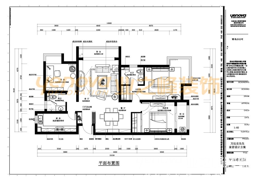
问题1: 三室改为两室。
解决方案:其中一个卧室改为书房。
设计说明:
欧式风格总是给人以富丽堂皇、雍容华贵的感觉,卫生间也不例外。虽然这个卫生间本身并不大,但是华丽的灯具、镜子、小饰品、再加上欧式的壁纸,整个卫生间自然而然就流露出一种西洋的调子。欧式豪宅中摆放的那些家具,均以质地上好的胡桃木、樱桃木以及榉木为原料,制成具有线条美感的家具,并在把手与床头等细节处,以铸铜、镀金、镀银、镶大理石等欧洲宫廷家具常用的制作手法来装饰美化。正是对材料的考究,才让眼前的这些欧式家具更加具有原汁原味的传统与奢华风格。
户型图

客厅




餐厅

卧室

书房





京公安网备11010502040911