168㎡三居简欧风格时代城
发布时间:
2017年06月08日
小区:时代城 面积:168㎡ 户型:三居 风格:简欧风格
设计说明
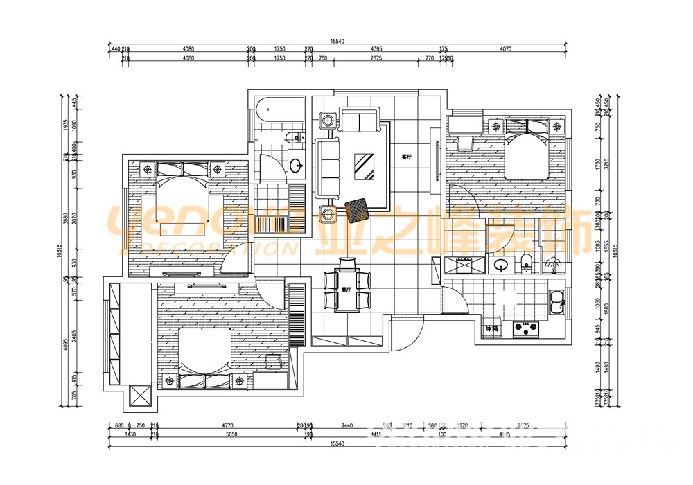
户型优缺点分析:
问题1: 次卧空间较小。
解决方案:做榻榻米解决储物空间问题。
设计说明:
现代欧式厨房,令人耳目一新的厨房,这是开放式厨房带来的空间感受。在开放式厨房中,将厨房和客厅相通的部分做成一个吧台,平时可作为餐桌使用,朋友来了,调几杯鸡尾酒,颇有些异国情调,是家居空间更宽敞,更具时尚感。
欧式风格总是给人以富丽堂皇、雍容华贵的感觉,卫生间也不例外。虽然这个卫生间本身并不大,但是华丽的灯具、镜子、小饰品、再加上欧式的壁纸,整个卫生间自然而然就流露出一种西洋的调子。
户型图

客厅



餐厅


儿童房

玄关





京公安网备11010502040911