128㎡三居现代简约风格佳源都市
发布时间:
2017年04月27日
小区:佳源都市 面积:128㎡ 户型:三居 风格:现代简约风格
设计说明
佳源都市位于青岛市即墨,为三房二厅一卫的高层住宅房。交通方便,环境优美,适合居住。本案以简洁明快的现代设计风格为主调,全面考虑在总体布局方面,满足业主生活上的需求,色调上主要为黑白灰色系并搭配时尚布艺家具,以亮色进行点缀,整体风格清新淡雅、美观舒适、富有活力。环境室内设计区别于简单的装饰设计就在于环境艺术设计是从全局出发,而不仅仅着眼某一点或某一个墙面的装饰. 室内设计一定要用心设计,从总体风格到细部装饰都要结合实际,反复推敲,反复构思,反复比较,比如一块宝石需精雕细刻一样,创造出精品,家装除了遭型美外,一个成功的作品还必须具备实用,舒适,时尚,美观,环保。
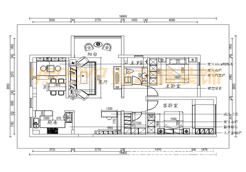
户型图

客厅



餐厅






京公安网备11010502040911