89㎡二居新中式风格绿地国际花都
发布时间:
2017年04月26日
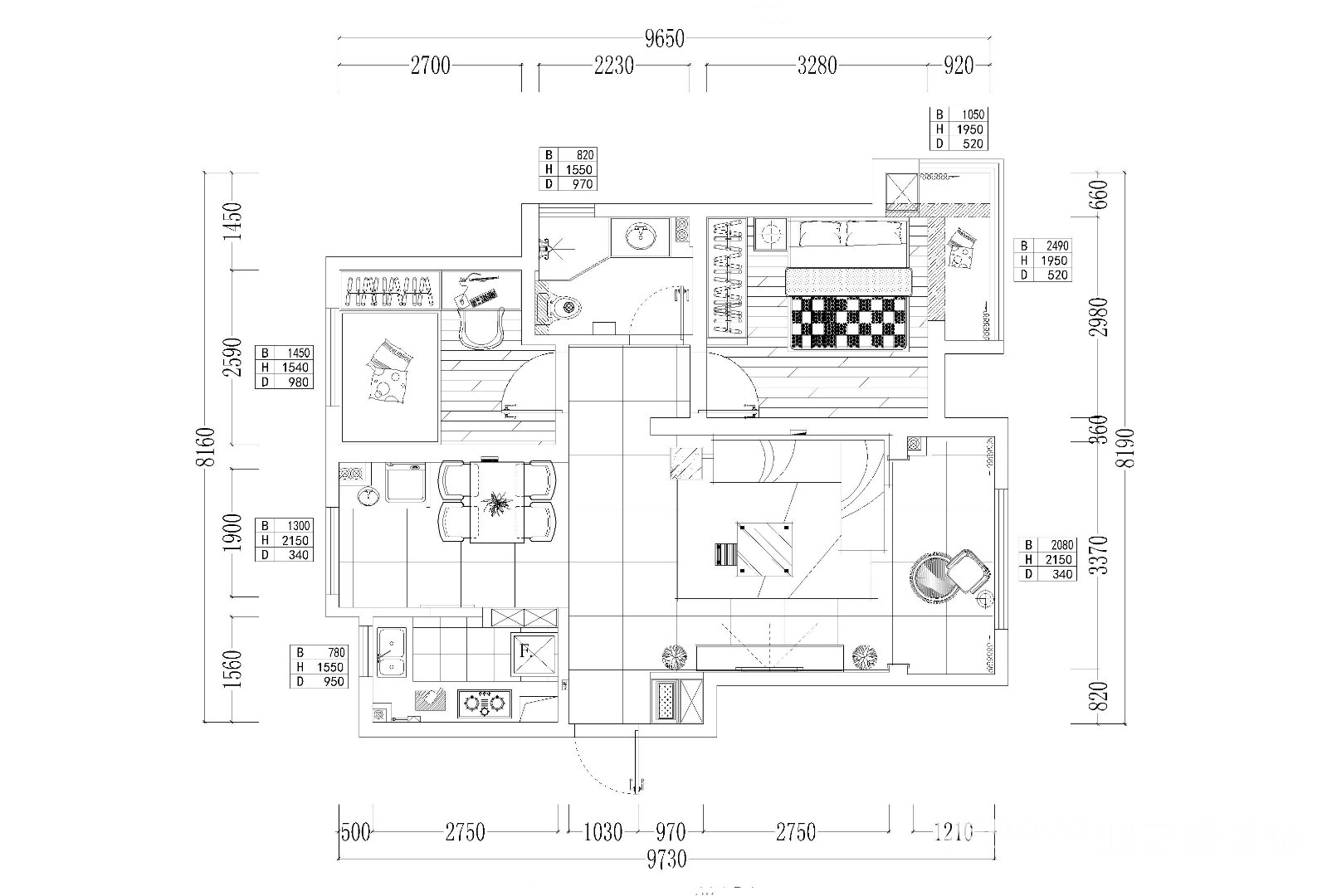
小区:绿地国际花都 面积:89㎡ 户型:二居 风格:新中式风格
设计说明
业主需求:平常居住的人口只有业主夫妇两人,故业主想要一个宽敞的客厅餐厅,整体色调以暖色为主。
设计说明:本案为89平米的平层空间,设计风格定为新中式风格,从格局上讲入户区域格局需要改造,增加入户储物空间,同时提升其审美性。南阳台与客厅融入同一空间,空间布局简洁爽朗,使空间得到有效的扩大。对主卧进行细化布局,从而提升生活品质,创造舒适的生活空间。
从设计风格上讲,设计师以其直线型的线条和细腻的轮廓,将新中式的雅致展露无遗。室内空间颜色以暖色为主,营造一种温馨和放松的氛围;色彩的的合理搭配,在软装设计中,注重生活细节的把控,对于沙发的材质与配色,陈设摆件的搭配,皆极具考量。
本案的设计,在布局上没有做过分的改动,而是从后期配饰和软装等去烘托空间,从而使空间洋溢着和谐、温馨的气息。
户型图

客厅




卧室

餐厅





京公安网备11010502040911