120㎡三居欧式风格一曲江山
发布时间:
2017年04月26日
小区:一曲江山 面积:120㎡ 户型:三居 风格:欧式风格
设计说明
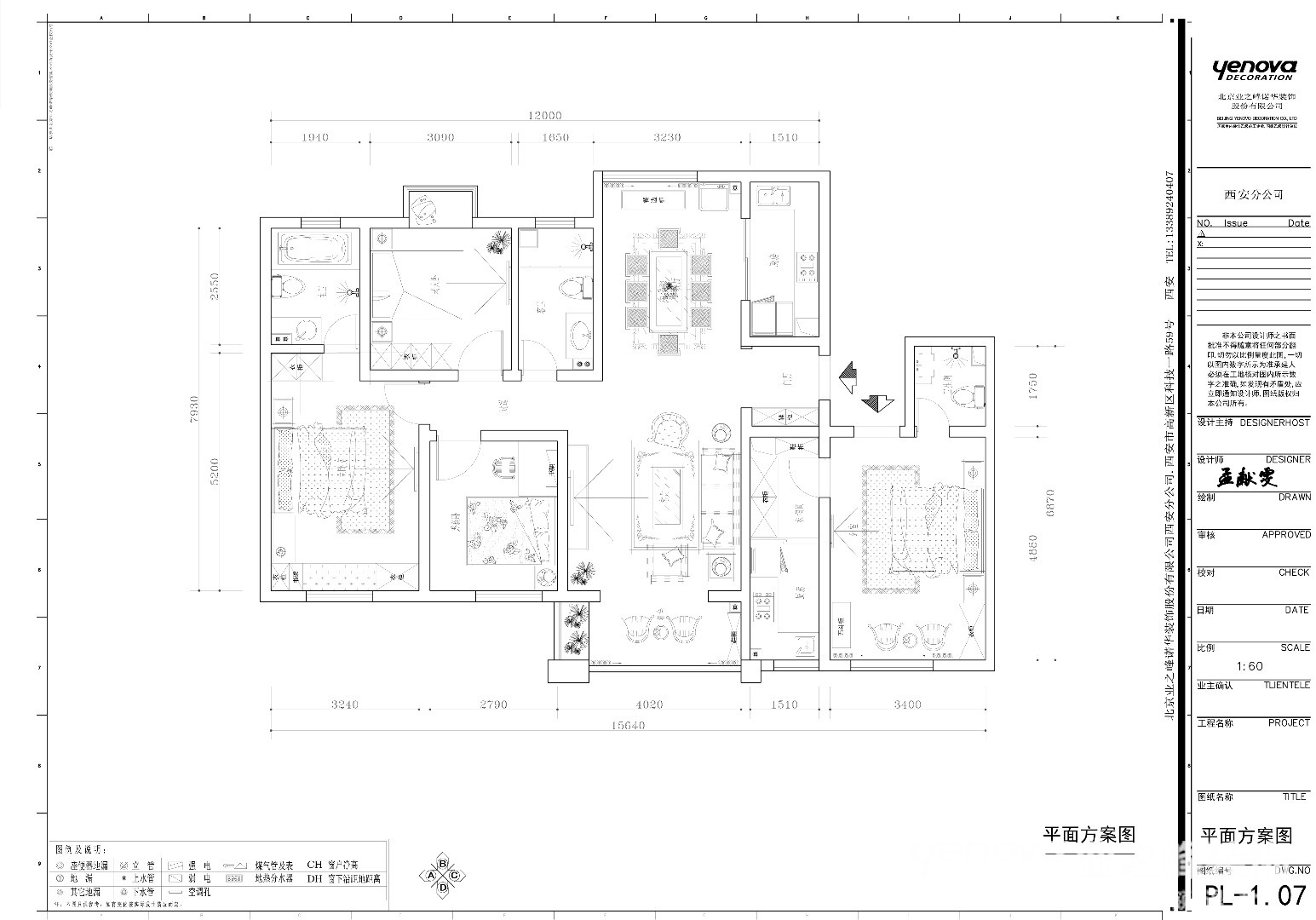
此设计为一家三口设计的,因业主喜欧式家具,所以风格定为欧式风格。此方案将厨房旁的小卫生间打掉;这样既增加了采光亮度,又能增加厨房的空间。另外可以把餐厅放在这个空间,让做饭和吃饭可以在同一个区域内完成。欧式风格的特征是强调线形流动的变化,将室内雕刻工艺集中在装饰和陈设艺术上,色彩华丽且用暖色调加以协调,变形的直线与曲线相互作用以及猫脚家具与装饰工艺手段的运用,构成室内华美厚重的气氛。它在形式上以浪漫主义为基础,常用大理石、华丽多彩的织物、精美的地毯、多姿曲线的家具,让室内显示出豪华、富丽的特点,充满强烈的动感效果。如果说古典欧式风格线条复杂、色彩低沉,而简欧风格则在古典欧式风格的基础上,以简约的线条代替复杂的花纹,采用更为明快清新的颜色,既保留了古典欧式的典雅与豪华,又更适应现代生活的休闲与舒适。无论是古典欧式风格还是简欧风格,其设计哲学都是追求深沉里显露尊贵、典雅中浸透豪华的设计表现,并期望这种表现能够完整地体现出居住人追求品质、典雅生活,视生活为艺术的人生态度。 清爽干净的乳白色调,看起来非常舒适。床品采用深蓝色则带来几分沉稳的味道。
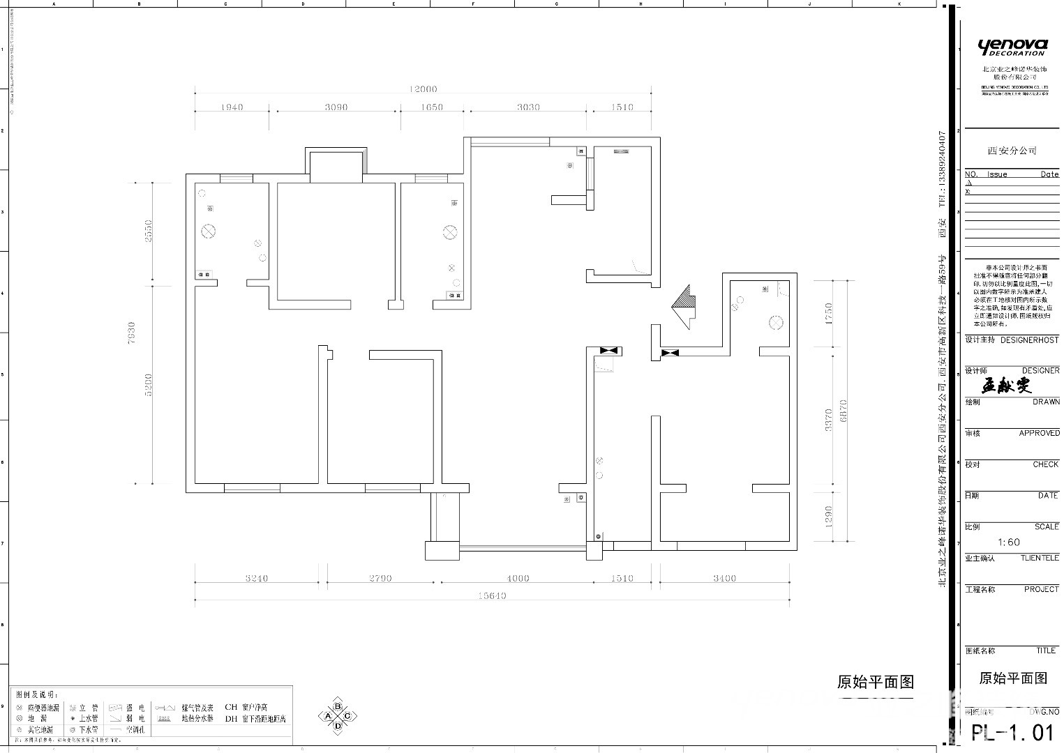
户型图

儿童房

客厅



卧室

餐厅





京公安网备11010502040911