89㎡二居简欧风格直沽园
发布时间:
2017年04月22日
小区:直沽园 面积:89㎡ 户型:二居 风格:简欧风格
设计说明
业主为一对相对年轻的客户,从事金融行业,典型的知识分子,思想活跃,品位高雅。本案在设计手法上,突出了文化人温文尔雅、平和理性的特点,客厅经过精心布置,用柔和的色调打造出清新淡雅的格调。适度的装饰也使家居空间不乏活泼气息,使人在空间中得到精神和身体上的放松,并且感受到时尚的气息。主卧与次卧十分淡雅,这里没有多余的色彩、布置和家具,没有喧嚣与繁冗,一派宁静悠远。以简化整合,改变后的主卧空间呈上升之势,置身其中给人积极向上之感,表现业主对快乐人生的追求。设计将客厅与餐厅加以区分,形成隔而不断,分而不离得互动空间,惬意的、
时尚的、成功人士的品质生活体验尽在其中。
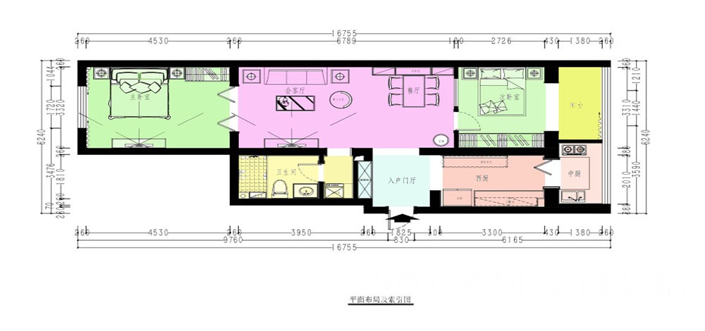
户型图

客厅




卧室






京公安网备11010502040911