400㎡别墅现代简约风格莱安逸珲
发布时间:
2017年04月12日
小区:莱安逸珲 面积:400㎡ 户型:别墅 风格:现代简约风格
设计说明
春天的华尔兹
平淡是一种美丽,都市里的生活越来越繁忙,给自己留一方小天地亲手伺弄一草一木。。。
本案现代时尚风格本案主要以几何线条修饰,色彩明快跳跃,外立面简洁流畅。立面立体层次感较强,合理运用色块色带处理。体现时代特征为主,没有过分的装饰,一切从功能出发,讲究造型比例适度、空间结构图明确美观,强调外观的明快、简洁。体现了现代生活快节奏、简约和实用,但又富有朝气的生活气息
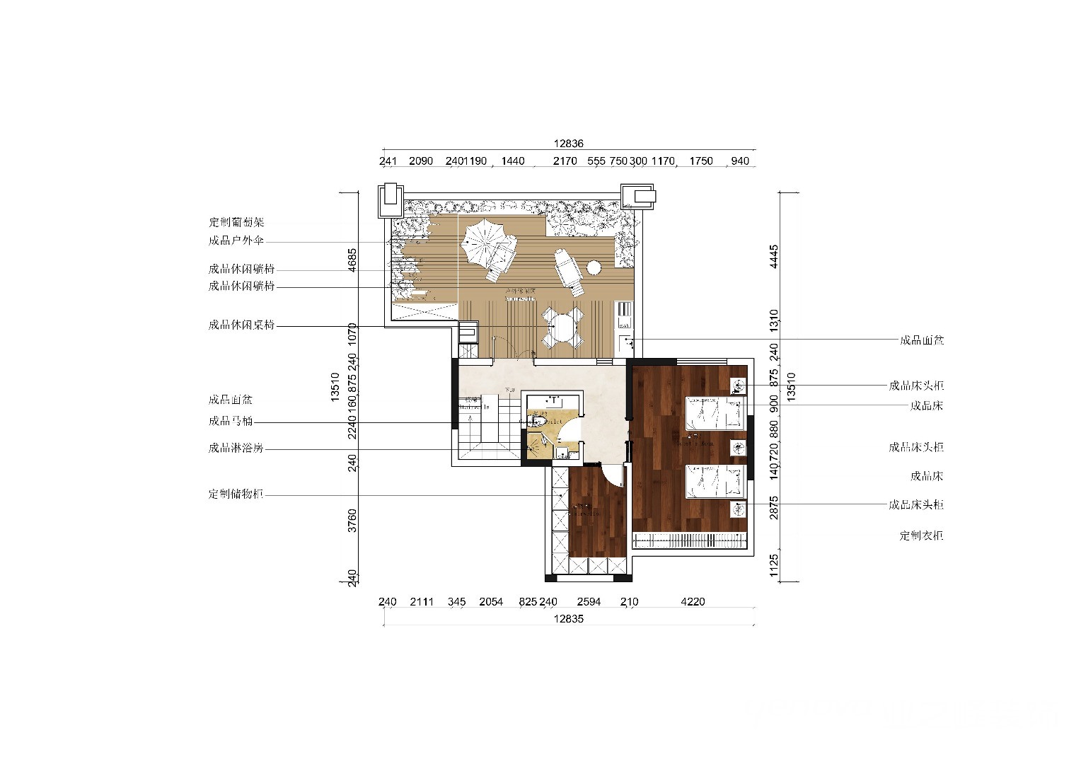
户型图

餐厅

客厅




卧室


休闲区





京公安网备11010502040911