500㎡别墅欧式风格曲江湖城大境
发布时间:
2017年04月12日
小区:曲江湖城大境 面积:500㎡ 户型:别墅 风格:欧式风格
设计说明
本案在设计的时候,更多的运用具有张力的设计感去阐述人内在的需求以及文化内涵,用空间表达内在的诉求和自省。空间内部的表达,附著于建筑架构之上,通过材质的搭配质感与层次,增加了空间的空间感和节律。注重强调造型的细腻、空间分割、层次的丰富及细节处理。细节处理上营造浪漫、温馨、休闲的气氛。空间色调以米色、咖啡色、蓝色为主,陈设色调以暖色以及邻近色调为主,局部点缀灰蓝色、米黄色。
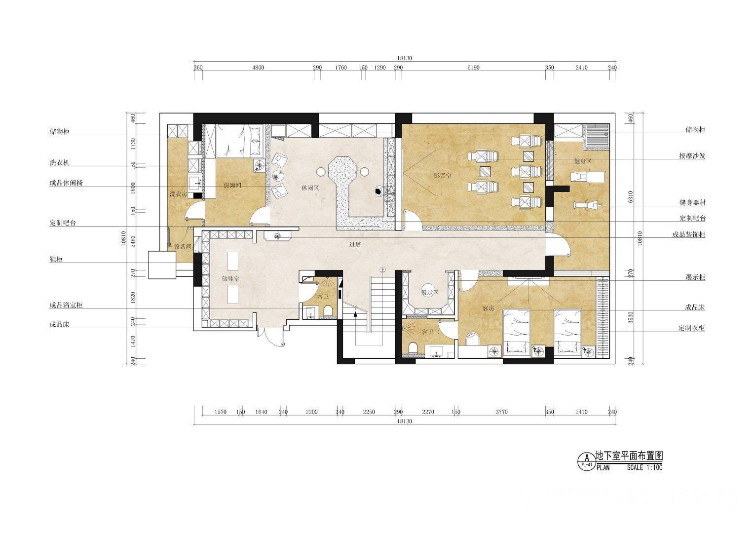
户型图

卧室




客厅





卫生间


休闲区


儿童房

楼梯

衣帽间

餐厅





京公安网备11010502040911