220㎡五居现代简约风格东湖尚郡
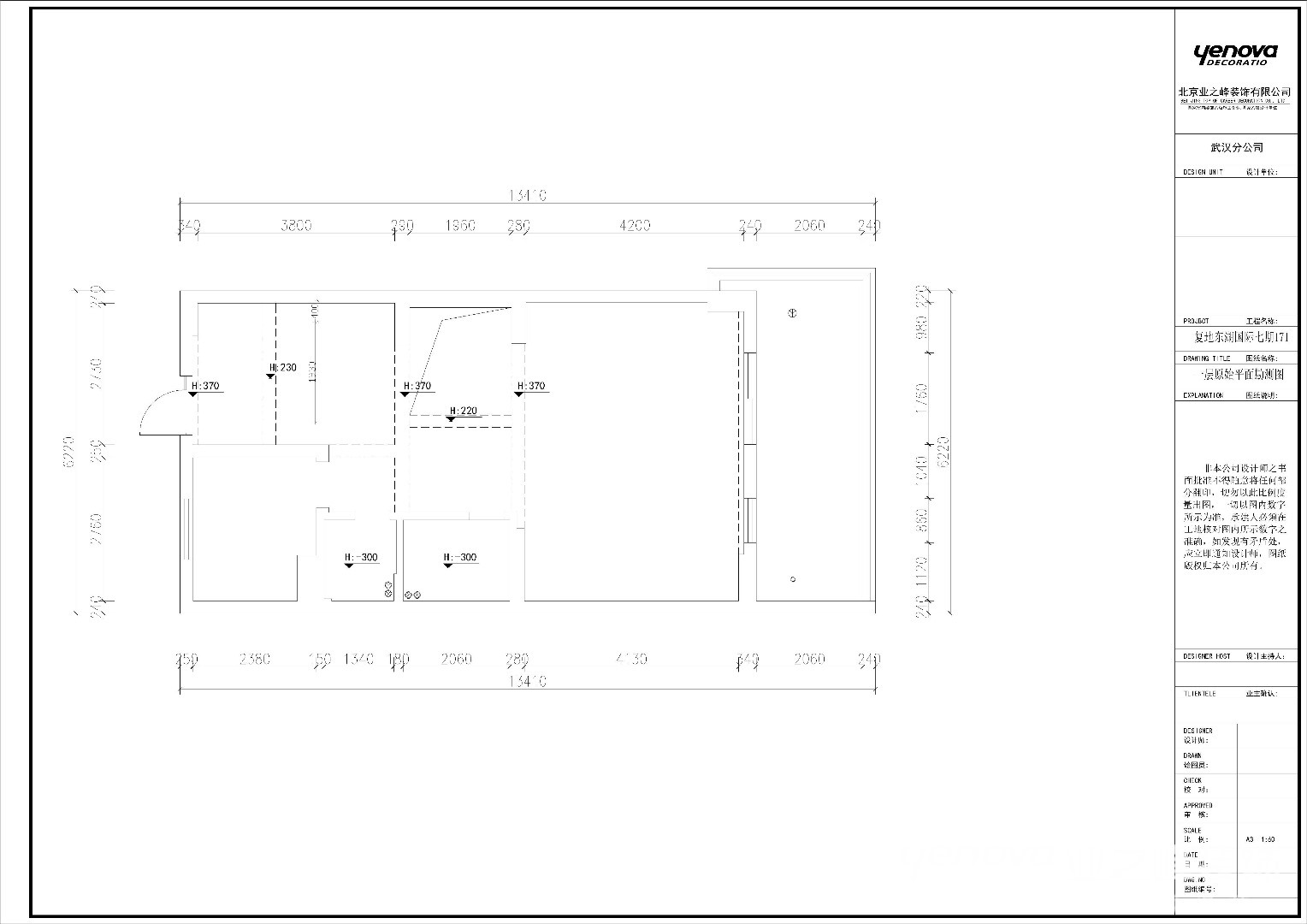
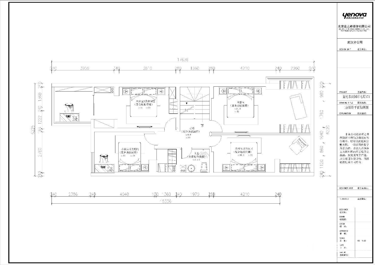
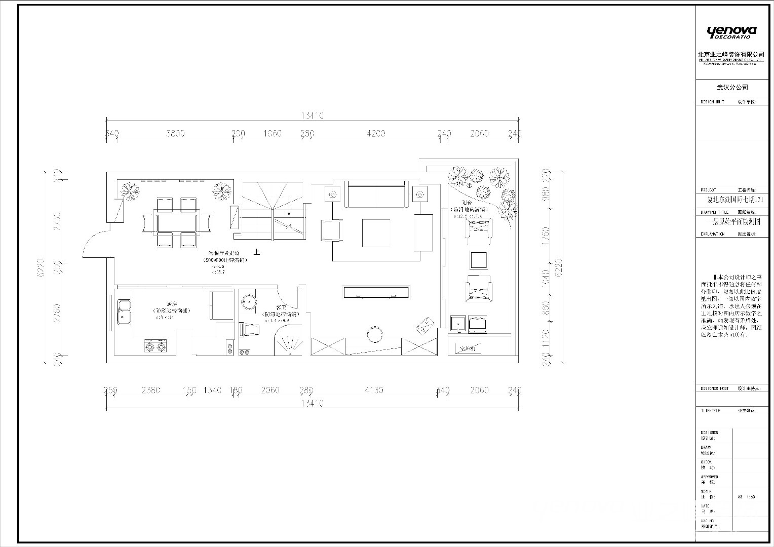
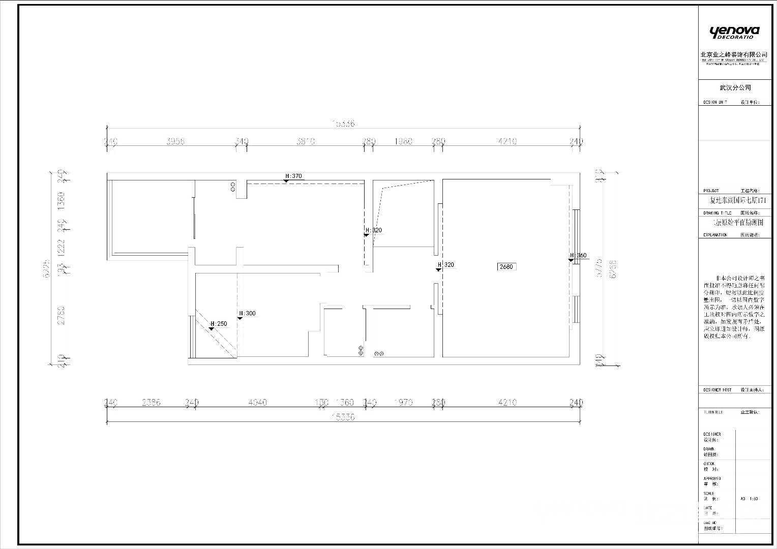
该户型为220平米,本室案设计风格为现代简约风格,现代简约风格将设计的元素、色彩、照明、原材料简化到最少的程度,但对色彩,材料的质感要求很高。因此,简约的空间设计通常非常含蓄,往往能达到以少胜多、以简胜繁的效果。
业主职业为医生。在与设计师沟通的过程中明确告知设计师自己的要求。需要四间卧室、一间独立书房,要求区域功能分区明确,因业主工作在医院,压力较大,为此设计师将主卧室设计了一个带有连贯性的衣帽间,在衣帽间的基础上摆上了一个休闲椅,让业主在家有放松身心的感受。客厅在设计中利用隔断区分了客厅与书房,让客厅与书房不仅在空间之间互相沟通,也使功能区分明确。厨房与次卫打通,让厨房面积增加,让厨房使用功能更加充实。设计师在与第二次与业主沟通是提出了自己的想法和风格定向,设计师与业主进行深入的探讨,并在沟通的过程中进行了一些变动。在方案上更加完善了客户的需求,最终确定了简约现代的风格与方案。
本方案在尽量不动原始结构上进行设计,划分出各个功能区域,增加空间的活动性,灵活性以及提高业主生活的品质,舒适度。让业主在回到家中感受到放松、愉快。











京公安网备11010502040911