119㎡二居法式风格绿地国际金融城
发布时间:
2017年04月11日
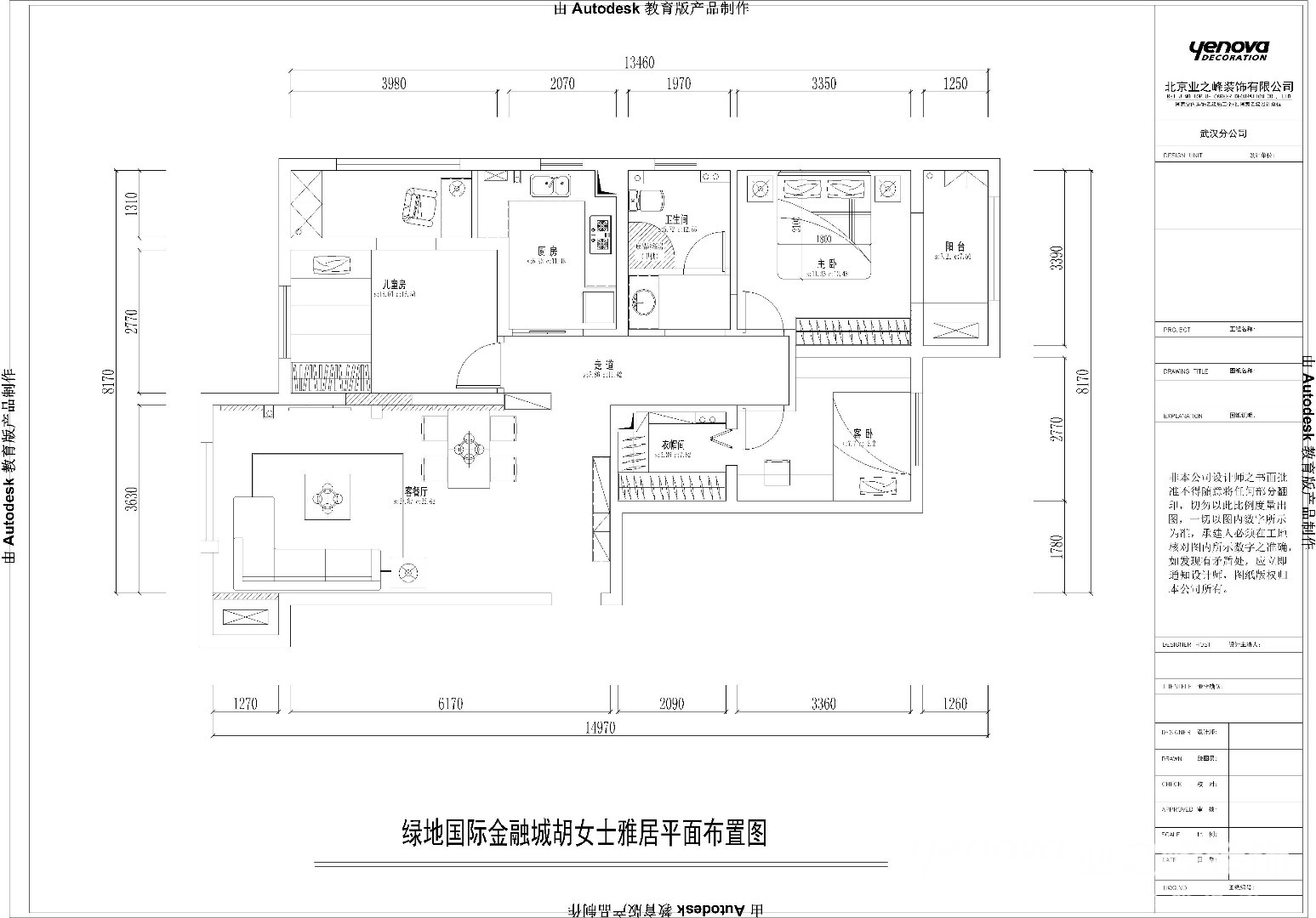
小区:绿地国际金融城 面积:119㎡ 户型:二居 风格:法式风格
设计说明
见到胡小姐的第一面,面容清秀、一袭长裙,秀发齐肩,甜美、文静,犹如法式的优雅.浪漫。
客厅实木原色地板,像是走在巴黎的香榭丽舍小道。
灰色更是时尚圈里永远的宠儿,优雅的内心里隐藏的一份野性,更是现代女性的写照。
地毯和餐椅 具有神秘色彩的紫色,是现代职场上的性格独立,夜晚回到家里卸下面具的映射。
背景墙的造型、马头的壁灯、沙发背景的鹿头装饰,尽显原始自然的美.
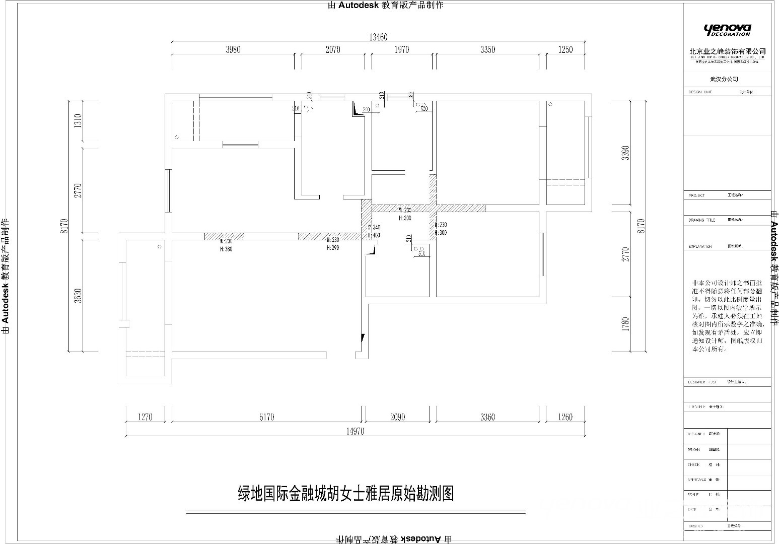
绿地此户型存在以下几个问题点:
1.卧室面积平均,但都难以满足更高的需求
2.次卫无自然通风采光
3.临近厨房的次卧过小
如若保留三房,次卫可做衣帽间考虑,增加居家储物
厨房处阳台面积做合理划分,厨房改造U字形,另外可以增加次卧室的面积,原阳台位置做书房,提高功能性的满足。
如果保留量房的结构,布局可改造型比较大,客厅的阳台可以打通,次卧的位置也可以做餐厅,主卧室的套房布局,衣帽间带卫生间等等,没有不好的户型,只是根据业主不同层次的需求来现实改造。
客厅










京公安网备11010502040911