205㎡三居新中式风格建投十号院
发布时间:
2017年04月09日
小区:建投十号院 面积:205㎡ 户型:三居 风格:新中式风格
设计说明
它与业主内敛含蓄的性格相协调,蕴含慈祥气息,宛自天开。将华贵气质释放,在动静开合之间以诗情画境的手法,将奢想变成必需。漫步其间,观春华秋实,览绵延厅落,步移景异,惘若置身静雅天地,大隐居于此,宠辱不惊、恬静悠长。
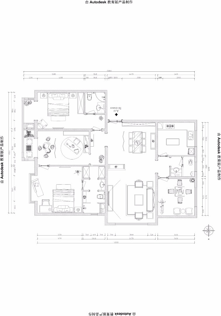
户型图

玄关

餐厅


客厅







京公安网备11010502040911