450㎡别墅江南新城
发布时间:
2017年04月08日
小区:江南新城 面积:450㎡ 户型:别墅 风格:
设计说明
现实与梦境交错,有时会有奇迹发生。
充满生机的绿色森林,让人兴奋、也让人迷失,这里呼吸过于温暖,融化了一切可能,这里光线过于闪烁,看不清斑马的面容。
哪些消逝的岁月仿佛隔着一块积着灰尘的玻璃,看得到,抓不住。
整个空间运用低饱和的橄榄绿,成熟中性,宁静随和,以白色、黑色、栗色加以修饰,带你回归自然,畅快呼吸!
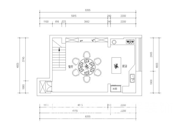
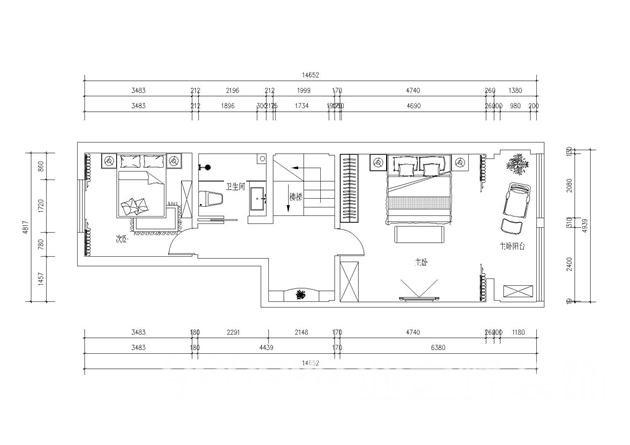
户型图

厨房

餐厅
客厅




卧室






京公安网备11010502040911