230㎡别墅新古典风格顺驰蓝郡
发布时间:
2017年04月08日
小区:顺驰蓝郡 面积:230㎡ 户型:别墅 风格:新古典风格
设计说明
本方案的设计风格为古典欧式风格。 在欧式风格的家居空间里,灯饰设计应选择具有西方风情的造型,比如壁灯,在整体明快、简约、单纯的房屋空间里,传承着西方文化底蕴的壁灯静静泛着影影绰绰的灯光,朦胧、浪漫之感油然而生。
房间可采用反射式灯光照明或局部灯光照明,置身其中,舒适、温馨的感觉袭人,让那为尘嚣所困的心灵找到了归宿。
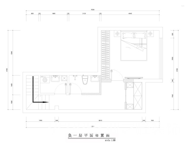
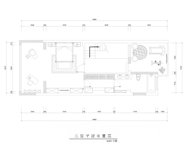
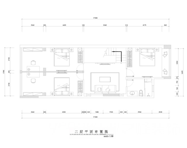
户型图

客厅







餐厅

楼梯

卧室





京公安网备11010502040911