160㎡三居新中式风格东胜紫御府
发布时间:
2017年04月08日
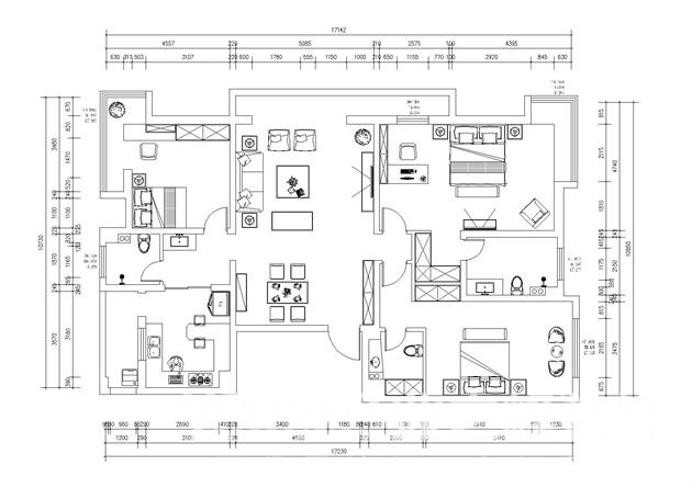
小区:东胜紫御府 面积:160㎡ 户型:三居 风格:新中式风格
设计说明
中式风格的客厅具有内蕴的风格,为了舒服,中式的环境中也常常用到沙发,但颜色仍然体现着中式的古朴,中式风格这种表现使整个空间,传统中透着现代,现代中揉着古典。这样就以一种东方人的“留白”美学观念控制的节奏,显出大家风范,其墙壁上的字画无论数量还是内容都不在多,而在于它所营造的意境。可以说无论西风如何劲吹,舒缓的意境始终是东方人特有的情怀,因此书法常常是成就这种诗意的最好手段。
户型图

客厅




儿童房


卧室





京公安网备11010502040911