80㎡二居现代简约风格瑞城
发布时间:
2017年04月08日
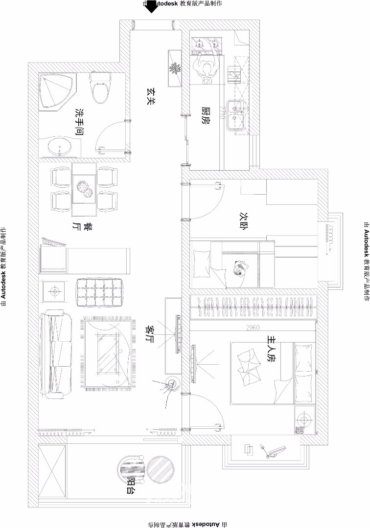
小区:瑞城 面积:80㎡ 户型:二居 风格:现代简约风格
设计说明
风格定义为现代,此居室主要采用咖色中性色调,稳重,大气,却又不失品味令人眼前一亮的感觉。最重要的是强调功能性的设计,线条简约流畅,色彩对比强烈,这是现代风格家居的特点。简约中求艺术,化繁为简,以宁缺毋滥为精髓,合理的简化居室,从简单舒适中体现生活的精致。
户型图

餐厅



客厅








京公安网备11010502040911