316㎡别墅新中式风格国仕山
发布时间:
2017年04月08日
小区:国仕山 面积:316㎡ 户型:别墅 风格:新中式风格
设计说明
本案设计为中式风格。中式风格营造出其禅意的感觉。后期软装方面,选用的配搭灯具、家具等也很考究
整套方案完美的融合了空间与人文的和谐共融,凸显出居室主人的精神文化情趣和审美高度。
家具结合中式的装饰元素,来呈现墙面顶面空间感。顶面和墙面的结合是的空间更得以延伸。本案体现出有化感、空间感,还不能缺乏自在感与情调感。所使用的材料流露出一股浓浓的中式风情。
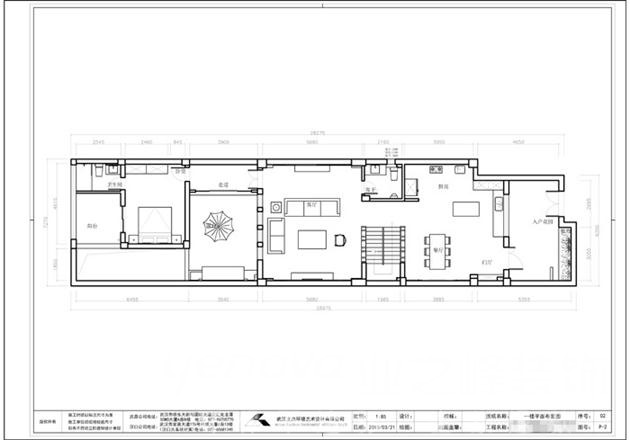
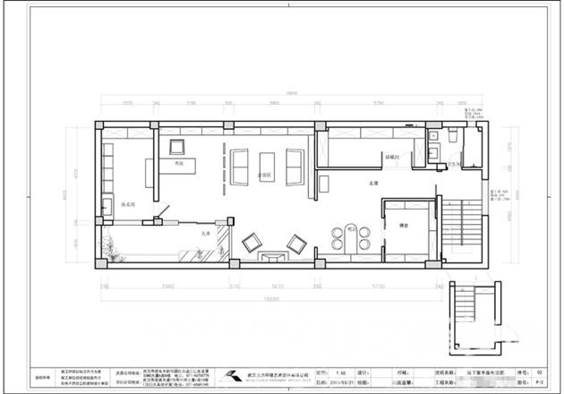
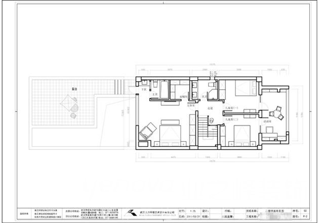
户型图

卧室


客厅




餐厅


厨房





京公安网备11010502040911