125㎡三居美式风格易道郡-玫瑰公馆
发布时间:
2017年03月29日
小区:易道郡-玫瑰公馆 面积:125㎡ 户型:三居 风格:美式风格
设计说明
此案例最重要的是功能性设计,线条简约流畅,色彩对比强烈,符合居住者对居住环境的要求。此外,适当使用装饰画、工艺品等饰品体现主人对高品质生活的追求,现代风格的主要装修材料,能给人带来现代、时尚,大气的感觉。装饰造型简单,主要以软装去营造居室空间,给居室留下可变换的空间,与硬装进行完美的配合,显示出设计的美感。简单大方的沙发配以个性的靠枕,以及室内生机盎然绿植的点缀,让整个居室给人以轻松、惬意、自由之感
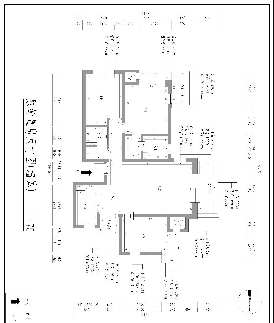
户型图

客厅



卧室

书房

卫生间

餐厅





京公安网备11010502040911