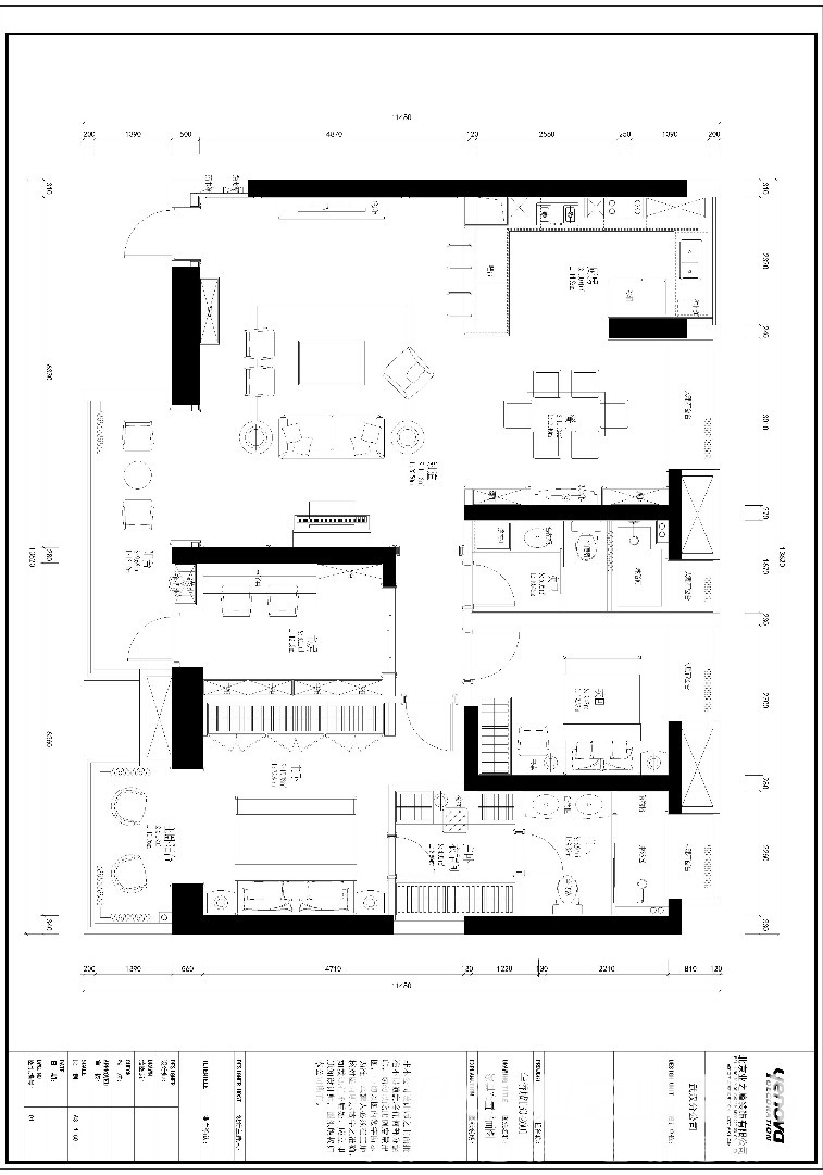
146㎡三居美式风格华侨城
设计用材:地砖、石膏线条、有色乳胶漆、墙纸、实木地板、等···
该户型为146平米,本室案设计风格为美式风格,美式风格摒弃了繁琐和奢华、向往自由的主张,比较随意和自在不受束缚。
业主为高级白领,长期漂泊在外,对“家”有一种朦胧感。第一次与设计师沟通时提出对房子使用的功能要求。需要独立的衣帽间、书房以及两间卧室与开放式书房。两间卧室都需要单独的书桌,主卧床头采用软包。主卫设计了双盆洗手池,增加了生活情调。应业主的要求客厅设置了钢琴区域,书房在原有的设计上在阳台处多开展了一扇门,让整个书房更加通透、连贯,设计师在进入书房设计的移门更加使得整个过道空间阳光充足。第二次沟通时,设计师提出了自己的想法与业主进行深入的探讨,并在沟通的过程中进行了一些变动。设计师再同时也提供了一些参考的图片来供客户选择,在沟通的过程中确定了简约的风格与最终方案。
本方案在尽量不动原始结构上进行设计,划分出各个功能区域,增加空间的活动性,灵活性以及提高业主生活的品质,舒适度,让业主操劳一天的都市生活中回到家有一种轻松、愉快、回归自然的感觉。客厅运用仿古地砖、有色乳胶漆,石膏线条组成的点室内景墙,造型整体电视柜,简单的颜色搭配却不失大气。对于主卧的设计师使用实木地板,大面积使用白色家具,使得整个空间明亮、清新。对于整个户型的装修风格,设计师设计整体简单,大方。并没有浪费多余的空间,使空间看起来整齐划一,运用得体。
��型。卧室采用石膏线条,实木地板、背景软包、成品家具来体现户型与设计的完美结合。并没有浪费多余的空间,使空间看起来整齐划一,运用得体。
的家具,是整个空间与软装自然的融合在一起,根据客户要求进行了合理且美观的改造,在家居布置上,行动流线通畅,使用便捷;在视觉上,删繁就简却不失小细节的体现,用洗练的笔触描绘出丰富动人的空间效果;在装饰上,强调功能性,线条简约流畅,与室内的石膏线条,单一的色彩形成完美呼应。











京公安网备11010502040911