308㎡别墅现代简约风格中海铂宫
发布时间:
2017年03月11日
小区:中海铂宫 面积:308㎡ 户型:别墅 风格:现代简约风格
设计说明
美式风格家具的如同美国独立的精神一样,讲究家居自由随意丶简洁怀旧丶实用舒适。美式风格在装修方面有一定特点,在风格上讲究简洁,在选色上以单一色为主,在家具上注重实用,在房间空间丶家具摆设丶强调节庆及家人团聚的家庭气氛。美式风格设计是美国生活演变到如今的一种形式,也是社会进步的潮流中改进与进步的结合的现实表现风格设计。美国地大物博,极大的放开了人们的视野,使得在装修风格设计上以宽大丶舒适,杂糅各族风格设计而著称。美国是一个崇尚自由的国家,对生活的方式也是有独特的一面,他们自由自在,随意的不羁的生活方式,没有太多的约束和装饰,不经意间成就了另一种浪漫的休闲方式。美式风格设计上迎合着这些元素下的资本主义者对生活方式的需求就有独特的设计风格,有文化感丶有贵气感,自由自在感与情调。
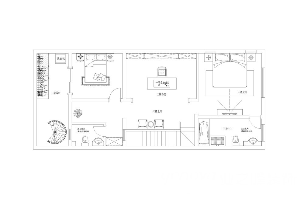
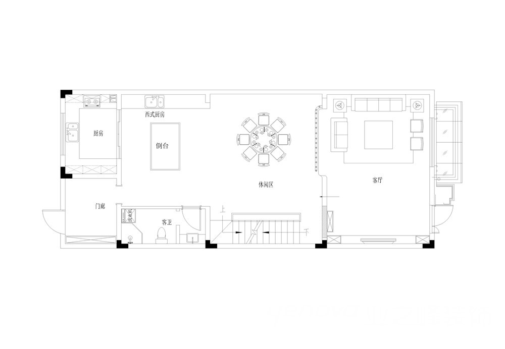
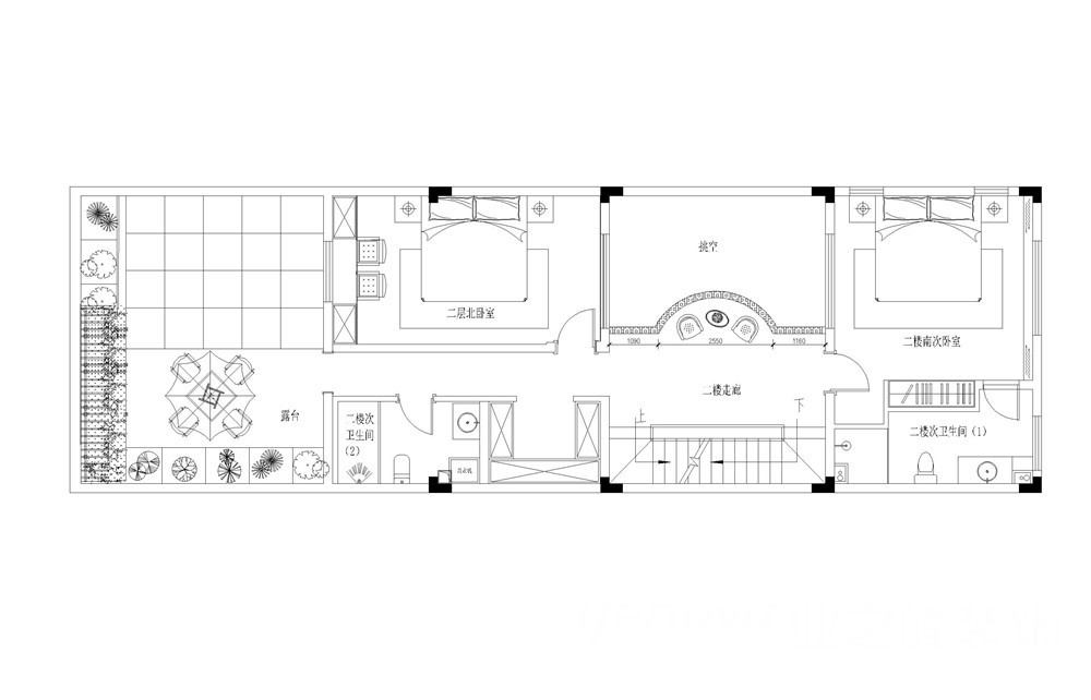
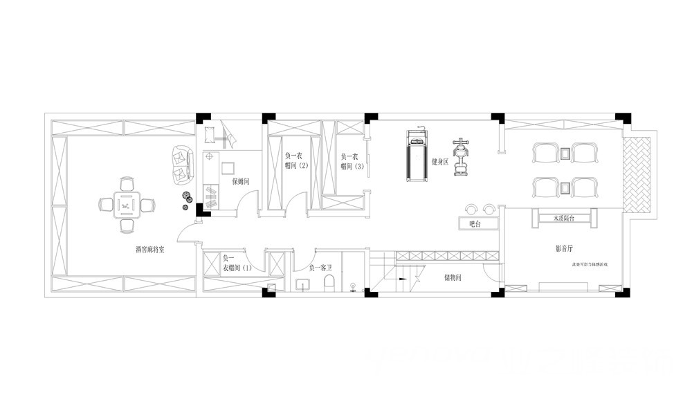
户型图

厨房



休闲区


客厅








卧室

玄关

餐厅





京公安网备11010502040911