193㎡平层港式风格燕岛国际
发布时间:
2017年03月04日
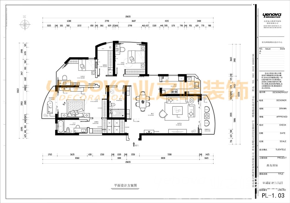
小区:燕岛国际 面积:193㎡ 户型:平层 风格:港式风格
设计说明
本案定位港式简约风格。不仅注重居室的实用性,而且还体现出了现代生活的精致与个性。港式风格在处理空间方面一般强调室内空间宽敞、内外通透,在空间平面设计中追求不受限制的自由。墙面、地面、顶棚以及家具陈设乃至灯具器皿等均以简洁的造型、纯洁的质地、精细的工艺为特征,强调形式应更多地功能性。给人带来前卫、不受拘束的感觉。客厅的以黄色为主调,展现一个休闲的氛围,电视墙处理相当简洁而富品味,是客厅的焦点所在。港式风格简洁自然,展现出的是港式家居风格。客厅储物空间居多,更具有实用性,美观大方。户型图 
卧室


餐厅

儿童房

客厅








京公安网备11010502040911