137㎡平层新古典风格晓港名城
发布时间:
2017年03月04日
小区:晓港名城 面积:137㎡ 户型:平层 风格:新古典风格
设计说明
本案的设计风格为简欧风格,简欧风格其实是介于新古典和美式之间的,华贵但不繁琐,本案中的亮点是电视背景墙的大理石套口与护墙板的运用。客厅地面大面积的瓷砖波打线形成强烈的对比,顶面跌级吊顶和石膏线突出视觉层次效果,以及主卧室和书房简约的设计形式都营造出居住人追求品质、典雅生活,视生活为艺术的人生态度。
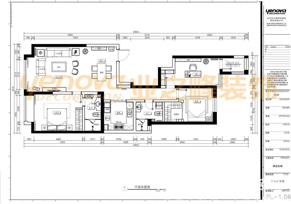
户型图

卧室


玄关

餐厅

客厅






京公安网备11010502040911