189㎡四居简欧风格阳光小区
发布时间:
2017年02月23日
小区:阳光小区 面积:189㎡ 户型:四居 风格:简欧风格
设计说明
本案在原始结构的框架上大胆突破,由于餐厅空间太小,且结构不合理,所以设计师大胆将餐厅扩大,延伸过道,使整个空间尽显大气,给人一种眼前一亮的视觉感受。壁纸和墙板的搭配相得益彰,线条的流动感,在无形中增添了空间的美观和舒适度。本设计在形式上颠覆了一贯的繁琐,营造了一种素雅明快的节奏感,给主人打造了一种更适合居住的完美空间。
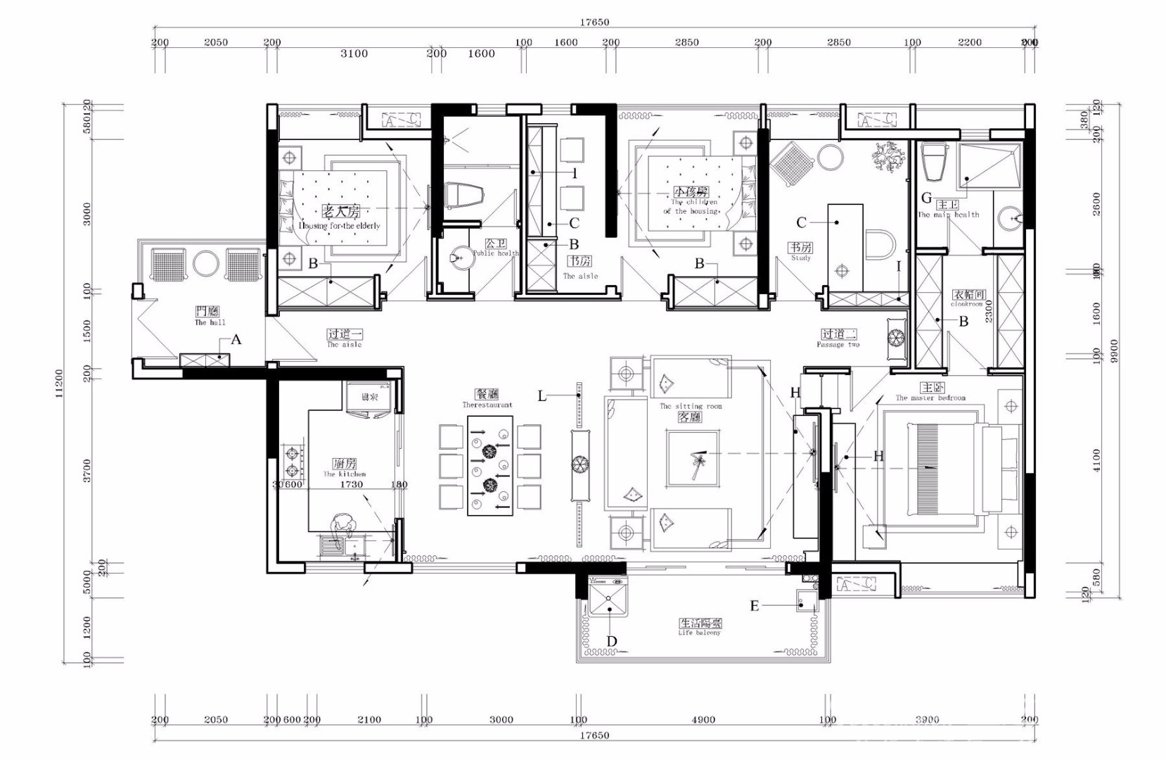
户型图

客厅






餐厅





京公安网备11010502040911