北京
【切换】
整屋案例
家居美图
实景案例
装修现场
装修攻略
无数据
搜索
010-84934479
扫码快速拨号 >
扫码快速拨号
首页
效果图
设计师
装修现场
装修攻略
品质保障
了解业之峰
当前位置:
首页
装修图库
案例相册
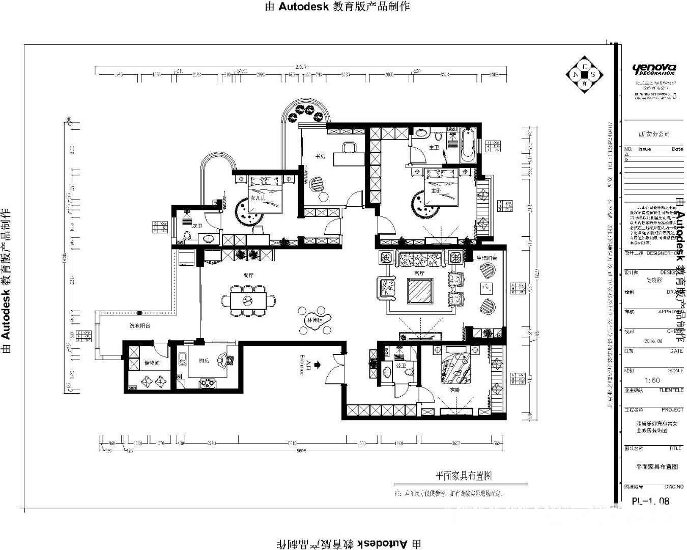
254㎡平层新中式风格雅居乐御宾府
发布时间: 2017年02月23日
小区:雅居乐御宾府
面积:254㎡
户型:平层
风格:新中式风格
设计说明
在中国文化风靡全球的现今时代,中式元素与现代材质的巧妙结合,再现了精致小巧的中国式韵味。新中式性价比高又不流失中式文化传统,简化了线条勾勒出一幅美丽的风景。
户型图
客厅
卧室
餐厅
儿童房
设计说明
户型图
客厅
卧室
餐厅
儿童房
本案设计师
业之峰专业设计师
免费咨询
我家装成这样多少钱?
㎡
获取报价
相关案例推荐
138㎡平层新中式风格御锦城萨拉曼卡
查看详情
105㎡平层新中式风格鲁能泰山七号
查看详情
211㎡平层新中式风格中联和府
查看详情
257㎡平层新中式风格金座伊方锦
查看详情
160㎡平层新中式风格朗诗乐府
查看详情
228㎡平层新中式风格保利天宸湾
查看详情
380㎡平层新中式风格莱安逸珲
查看详情
180㎡平层新中式风格绿城熙园
查看详情
180㎡平层新中式风格中海阅麓山
查看详情
220㎡平层新中式风格海门沁园
查看详情
220㎡平层新中式风格龙湖葡醍
查看详情
145㎡平层新中式风格滨江玺
查看详情
115㎡平层新中式风格融创和悦
查看详情
200㎡平层新中式风格蓝城诚园
查看详情
104㎡平层新中式风格汉河家园
查看详情
500㎡平层新中式风格杨村
查看详情
577㎡平层新中式风格玺悦街
查看详情
222㎡平层新中式风格柏悦府
查看详情
170㎡平层新中式风格鲁商常春藤
查看详情
120㎡平层新中式风格万达水西台
查看详情
展开
报价计算器
免费量房
免费设计
回到顶部