290㎡别墅简欧风格复地御香山
发布时间:
2017年02月21日
小区:复地御香山 面积:290㎡ 户型:别墅 风格:简欧风格
设计说明
此设计方案的业主风格倾向定位为中式风格。本案的设计重点是运用圆形弧形对正方的空间进行融合,从设计手法上采用了从墙面上的线与面的衔接呼应,以及顶面的空间的虚拟划分,达到各功能空间融会贯通的目的。
客厅:客厅是家人团聚、招待朋友的场所,大方得体是第一要素。整体采用同一色调,局部用软装进行点缀,此处客厅的色彩木色为主基调,木质的传统家具,格栅,线条使空间看起来十分和谐;此方案是通过对传统文化的认识,将中式元素和空间及功能结合在一起,以现代人的审美需求来打造富有传统韵味的事物,让传统艺术在当今社会得到合适的体现。
餐厅:在居室环境的设计中达成这一平衡是一门艺术。阴阳平衡,是中式空间的特色。餐厅用圆形的空间达到气场圆通,弧形的博古架以及富有韵味的干景与餐厅呼应。通过简单几何形体的排列组合,反映出传统中式的独特韵味。
主卧:色彩以统一、和谐、淡雅为主,背景墙用枣红色进行点缀。主要运用到木材质,张显简朴大方之气。卧室的装饰不容易出彩,但通过墙面、家具、配饰在造型、色彩、材质方面的搭配与设计,就能赋予空间不同的居室格调,使空间的设计更富整体感和表现力。卧室的灯光照明以温馨和暖的黄色为基调使室内更具浪漫舒适的温情。中式风格卧室装修中线条与床头格栅完美结合,整体风格做了精致的设计处理。
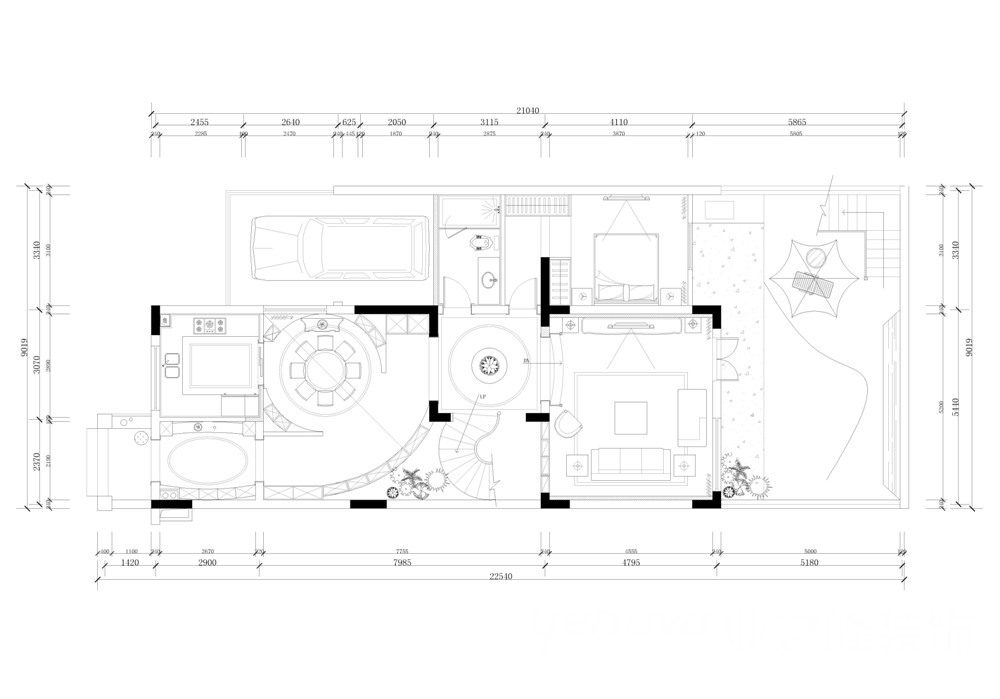
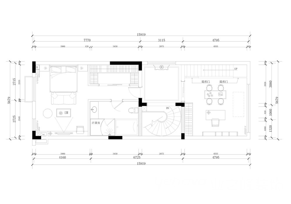
户型图

客厅











京公安网备11010502040911