370㎡平层美式风格廊桥水乡
发布时间:
2017年02月21日
小区:廊桥水乡 面积:370㎡ 户型:平层 风格:美式风格
设计说明
此设计方案的业主风格倾向定位为美式风格。
美式风格的装修设计一向以奢华气派为主,柔美与温馨并集。美式餐厅以表现和体验美式生活方式为主。美式风格没有太多造作的修饰与约束,不经意中也成就了另外一种休闲式的浪漫,它有着欧罗巴的奢侈与贵气,但又结合了美洲大陆这块水土的不羁,这样结合的结果是剔除了许多羁绊,但又能找寻文化根基的新的怀旧、贵气加大气而又不失自在与随意的风格。
美式风格讲究的是如何通过生活经历去累积自己对艺术的启发及对品味的喜好,从中摸索出独一无二的美学空间。 就如同常见的美国电影里面的美式居家,有家人的照片在角落里,有不舍得放弃的阳台小花园,有开放厨房绕着全家的笑声,有明亮的浴室让人去除疲倦。美式居家说的不只是一种风格,也是一种生活态度,相信您也会爱上它。 家居自由随意、简洁怀旧、实用舒适;暗棕、土黄为主的自然色彩; 欧洲皇室家具平民化、古典家具简单化;家具宽大、实用舒适; 侧重壁炉与手工装饰,追求粗犷大气、天然随意。
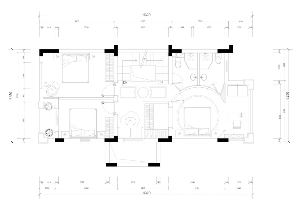
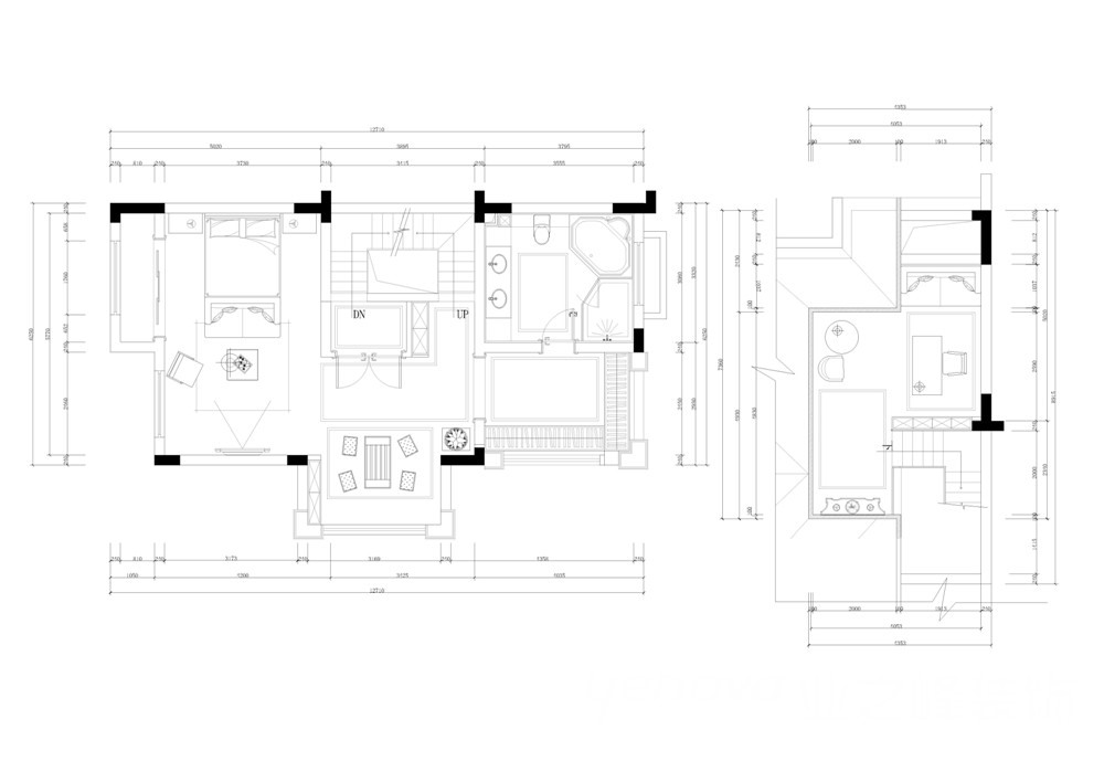
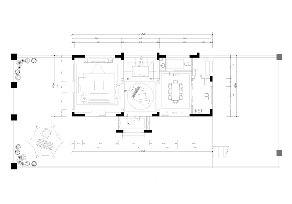
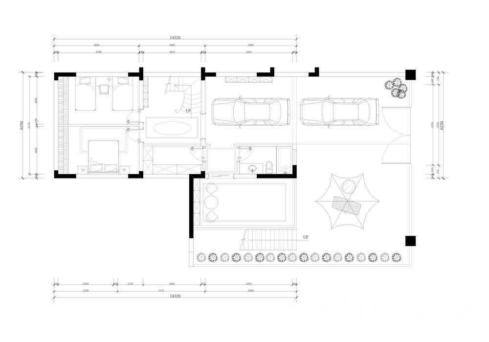
户型图

餐厅

卧室

客厅









京公安网备11010502040911