446㎡别墅美式风格万科五龙山
发布时间:
2017年02月21日
小区:万科五龙山 面积:446㎡ 户型:别墅 风格:美式风格
设计说明
设计师说明: 乡村风格在美式家具中一直占有重要地位,由于它造型简单、明快,而且实用,长久以来受到各国消费者的喜爱。在1998年的家具展中被加入了多功能设计,外观和用料仍保持自然、淳朴的风格,隐藏设计的抽屉收纳了空间,使其看起来更整洁、美观。就整体而言,美式家具传达了单纯、休闲、有组织、多功能的设计思想,让家庭成为释放压力和解放心灵的净土。美式家具的最迷人之处还在于造型、纹路、雕饰和色调细腻高贵,耐人寻味处透露亘古而久远的芬芳。
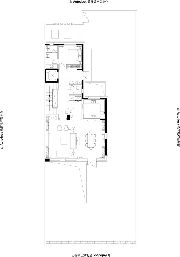
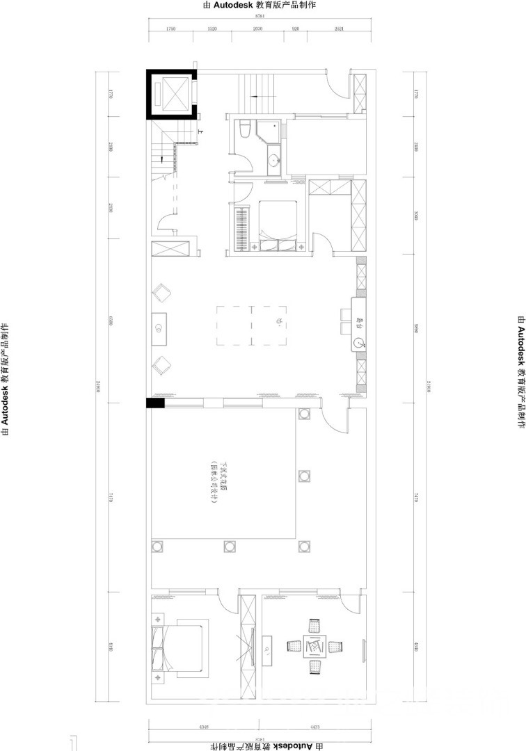
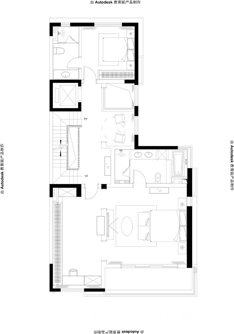
户型图

客厅





休闲区

卧室

阳台

衣帽间





京公安网备11010502040911