120㎡平层欧式风格世茂玉锦湾
发布时间:
2017年02月21日
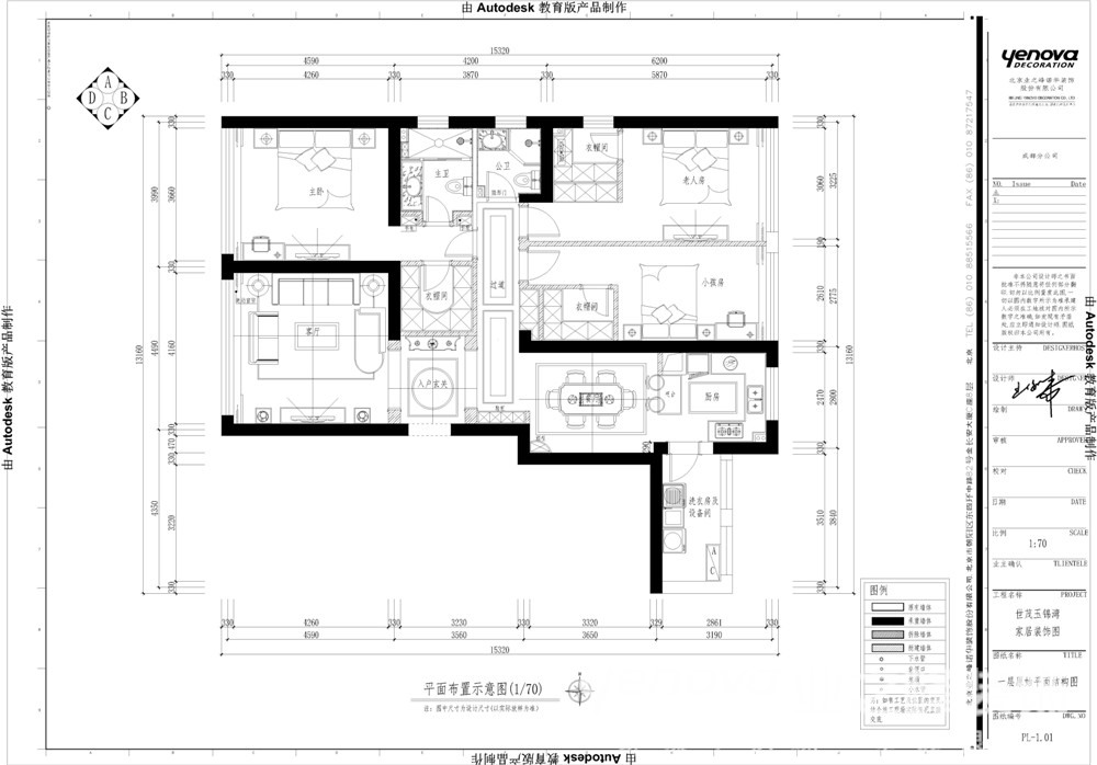
小区:世茂玉锦湾 面积:120㎡ 户型:平层 风格:欧式风格
设计说明
本户型为建筑面积120平米的住宅,根据客户的要求,设计师对功能区域进行了局部调整与改造,充分满足了业主对生活品质和房屋功能的需求。并注重了整体设计中的细节考虑,大局着眼、细部入手,合理有效地运用了局部小空间并加以美化,由此使设计方案愈臻完善并贯穿着深得推崇的以人为本的设计理念。
此套设计整体风格定位为欧式风格,设计运用石材、木制墙板、软包、镜面、墙纸等多种材料,同时注重色彩搭配效果,照明方面采用暗藏灯带,吊灯、壁灯等,共同组成多层次的立体照明,配合上丰富的软装,为主人呈现出令人心动的新贵族盛宴。
户型图

卧室

客厅


餐厅





京公安网备11010502040911