380㎡别墅美式风格华侨城东岸
发布时间:
2017年02月17日
小区:华侨城东岸 面积:380㎡ 户型:别墅 风格:美式风格
设计说明
该客户是一对年轻夫妇,有一女儿。初次见面,对风格要求明确:美式风格略带乡村风格。对空间结构改动有较高要求。经过充分沟通,设计师给客户做了空间规划改造,正是合理的空间规划改造及对美式风格充分理解打动了客户,才有了这套作品的完美呈现。
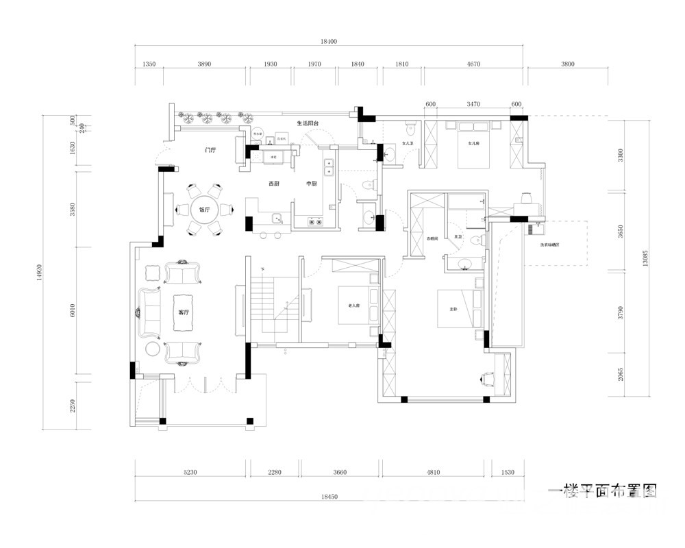
户型图

卧室

客厅


餐厅





京公安网备11010502040911