280㎡别墅简欧风格国王湖
发布时间:
2017年02月10日
小区:国王湖 面积:280㎡ 户型:别墅 风格:简欧风格
设计说明
欧式的居室有的不只是豪华大气,更多的是惬意和浪漫。通过完美的典线,精益求精的细节处理,带给家人不尽的舒服触感,实际上和谐是欧式风格的最高境界。
简约欧式风格沿袭古典风格的主元素,融入了现代的生活元素。简欧风格是结合了古典和现代的产物,室内多采用壁纸、地毯等古典装饰物。继符合了业主的要求而又满足了欧式风格需求。
简欧大气、更贴近于自然,也符合国人审美,因此国内发展较快,但仍未普及。简欧也就是简化了的欧式装修风格,一方面保留了材质、色彩的大致感受,可以领悟到欧洲传统的历史痕迹与深厚的文化底蕴,同时又摒弃了过于复杂的肌理和装饰,简化了线条,并将浪漫。
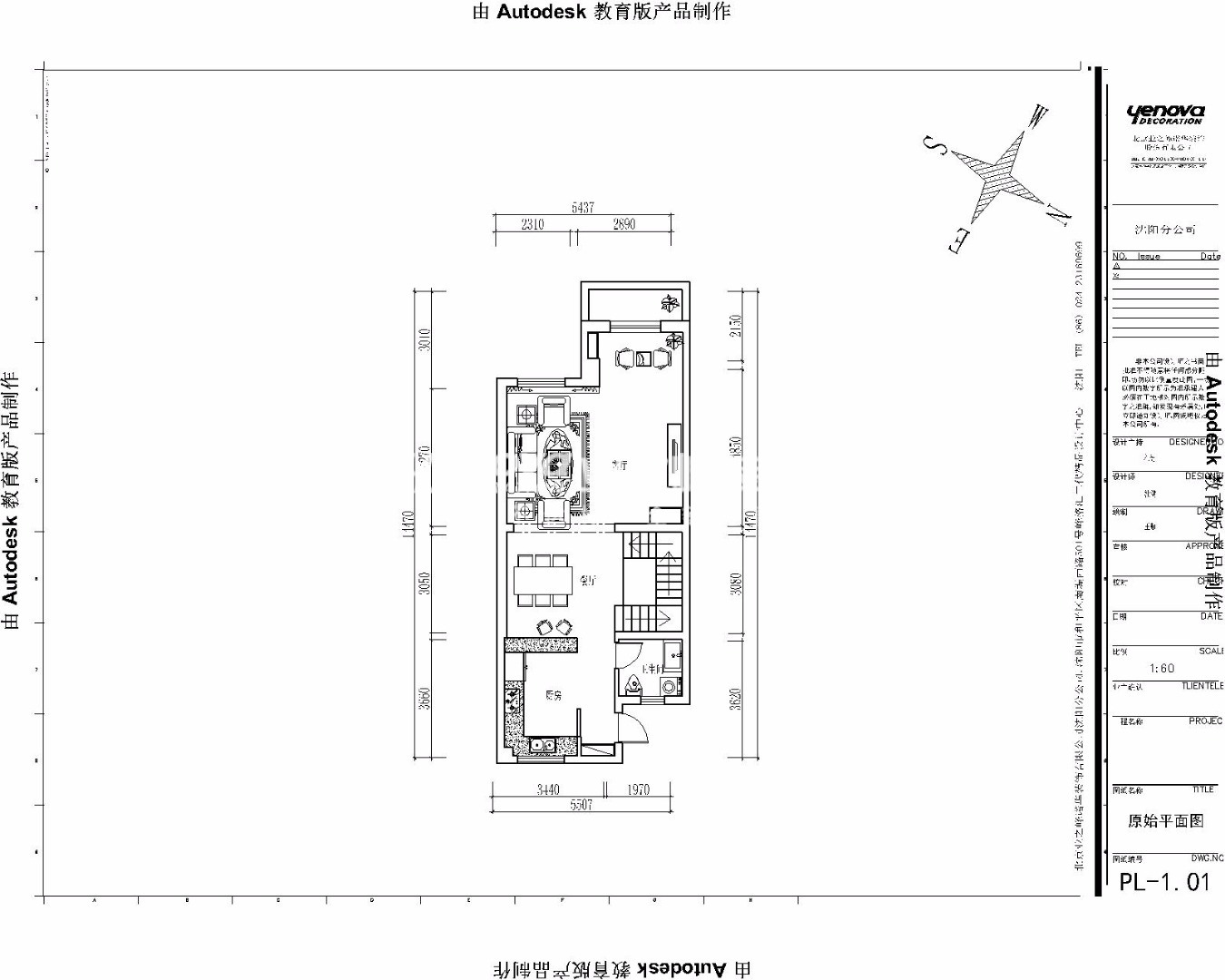
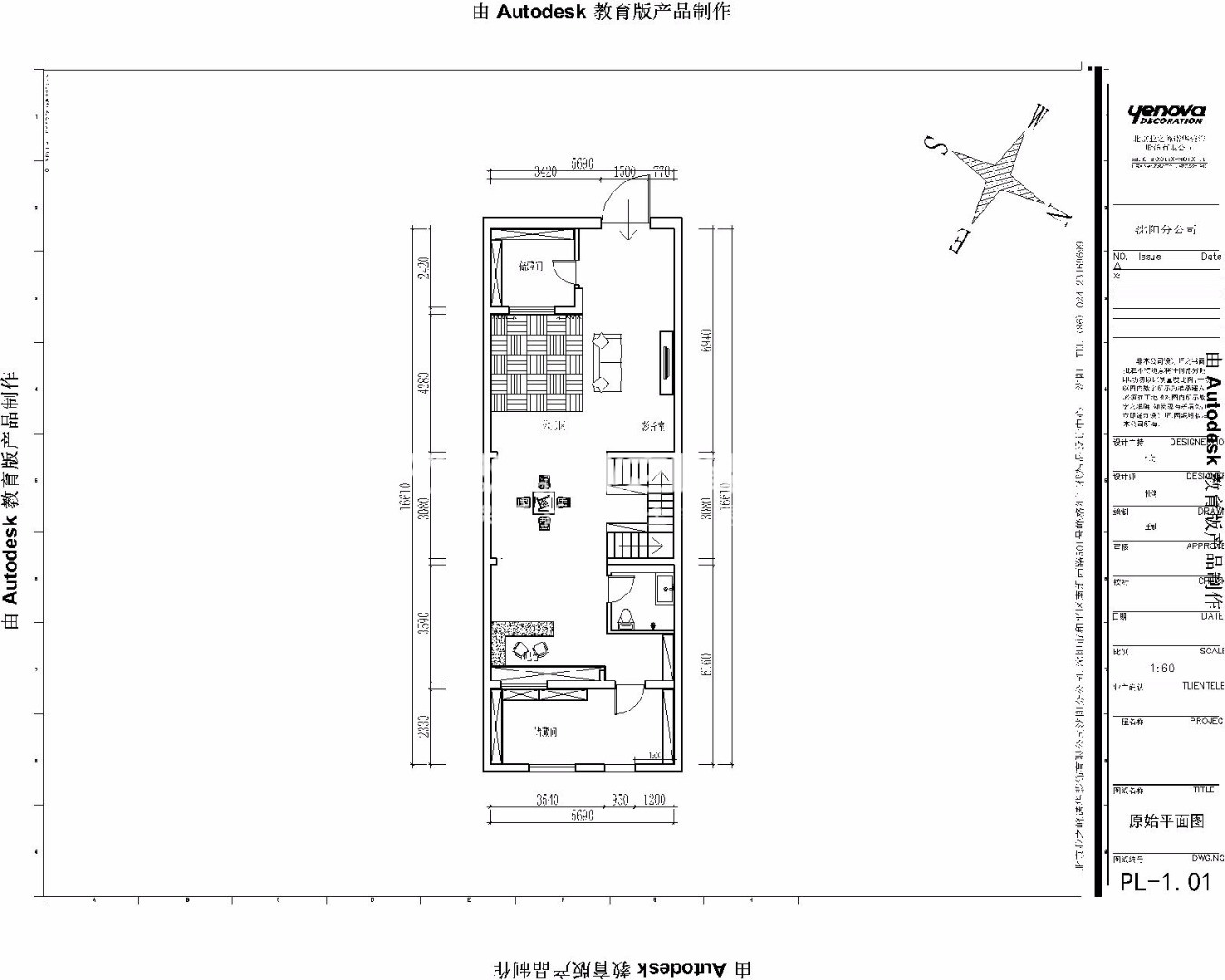
户型图

客厅






卧室
休闲区






京公安网备11010502040911