450㎡别墅美式风格中铁阅山湖
发布时间:
2017年02月10日
小区:中铁阅山湖 面积:450㎡ 户型:别墅 风格:美式风格
设计说明
本方案设计针对于一个四口之家,更偏向往于轻奢主义的美式风格装修及生活体验。固此方案立足于创造生活品质及经典视感的设计理念,将优雅与轻奢相结合;复古与现代相结合,舒适与和谐相结合。以暖色为基调,创造出华丽而不张扬,雅致却不单调的的独特美式风格设计。在满足与品质功能布局的同时,能满足于居住心理的感官体验。
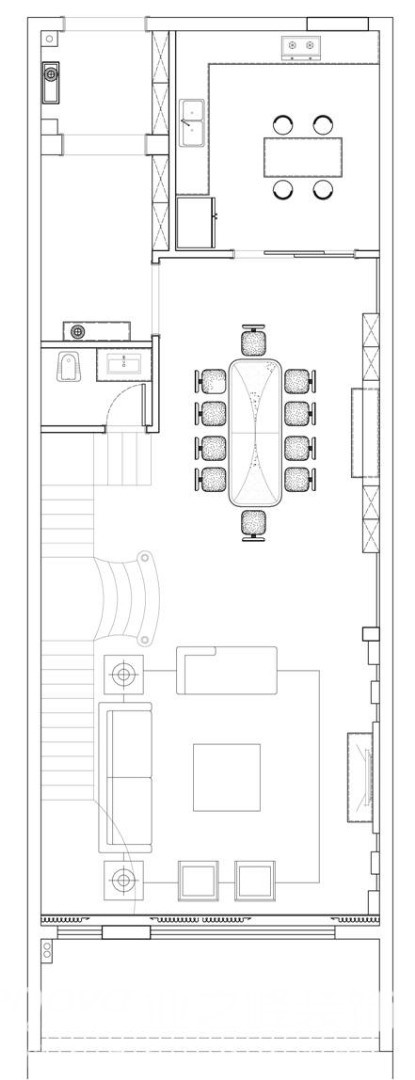
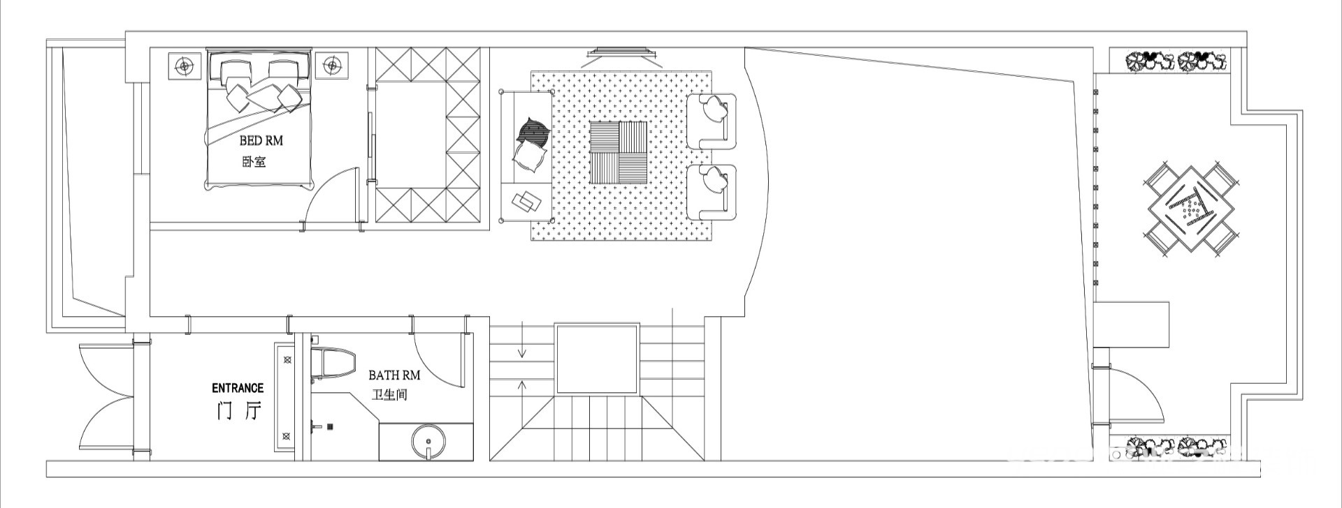
户型图

客厅




卫生间

餐厅


书房

楼梯





京公安网备11010502040911