180㎡四居后现代风格奥林逸城
发布时间:
2017年02月07日
小区:奥林逸城 面积:180㎡ 户型:四居 风格:后现代风格
设计说明
业主是一对事业有成的中年夫妇从事IT行业,因为和老人同住的原因,所以整个装修风格定位在后现代风格,即现代风格的设计元素和简中式的家具相结合,再搭配一些木色元素,使整个客厅空间看起来即不像中式那么隆重又不像现代那么简约,更适合两代人的居住。
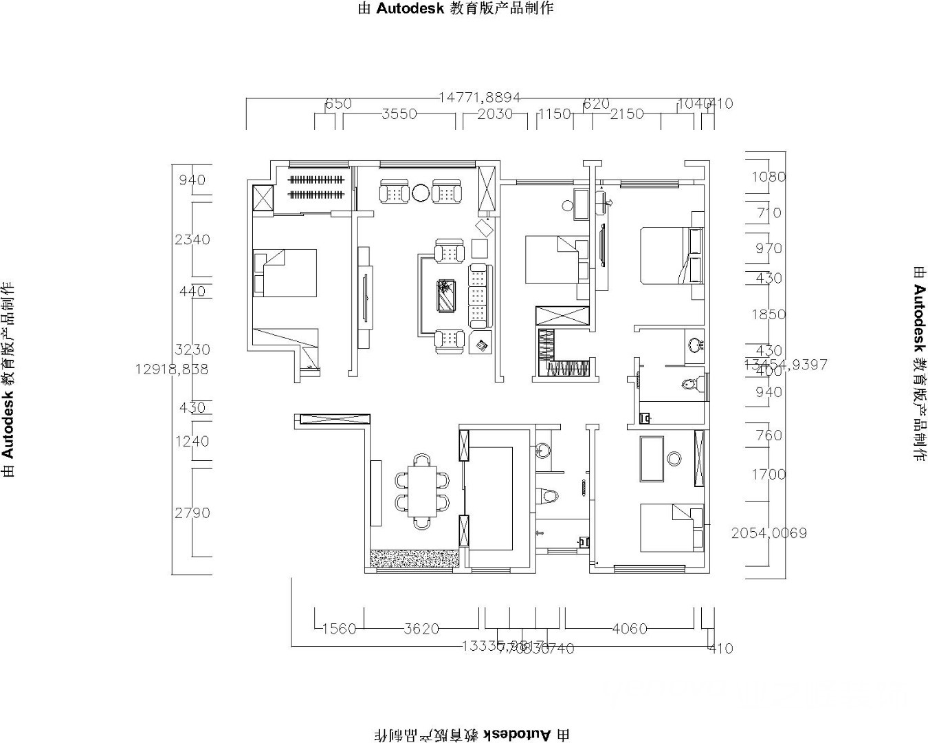
户型图

客厅






餐厅

卫生间


卧室




衣帽间

儿童房


玄关






京公安网备11010502040911