150㎡四居简欧风格日报社家属院
发布时间:
2017年02月07日
小区:日报社家属院 面积:150㎡ 户型:四居 风格:简欧风格
设计说明
本案业主是一个事业有成的主人,对家居环境有较高的要求,膝下有一个男孩,与老人一起同住所以整体风格格调比较沉稳,以木色为主,有适当的采用银镜,让空间沉稳大气有余而又不沉闷,男孩房以蓝色调为主,主卧室因女主人的要求做的比较简约舒适,散发着浪漫气息,整个空间功能布局合理,细节处理到位,加上色彩与软装的配饰处处彰显着业主独到的品味,给业主营造一个舒适,美观,功能需求齐全的居住环境,更映衬了欧式风格的特点,在西方的生活文化里每一个细节都映衬着主人的生活方式,这种生活方式恰好与业主的风格需求相呼应。
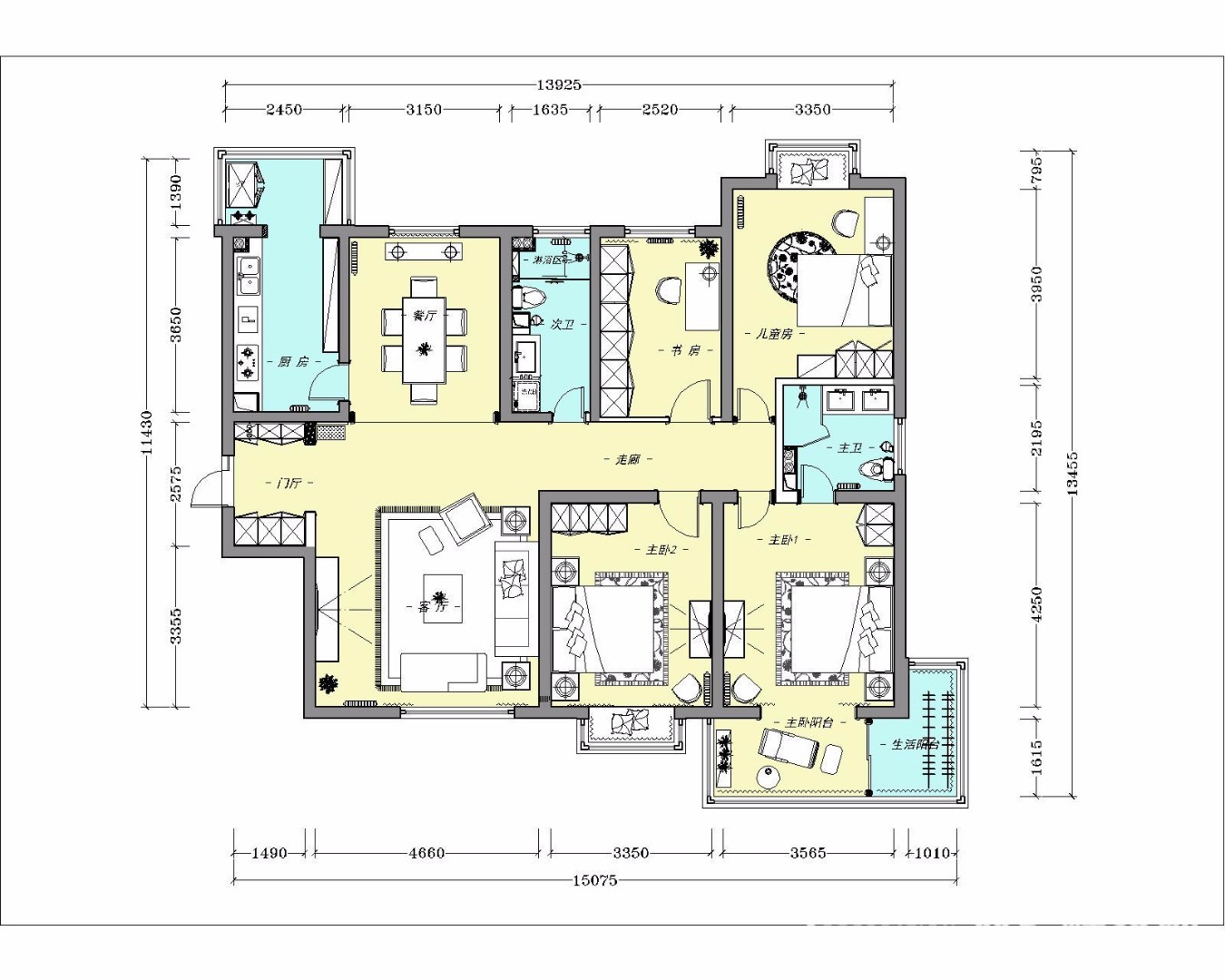
户型图

儿童房

餐厅

玄关

客厅







京公安网备11010502040911