130㎡三居简欧风格九鼎城
发布时间:
2017年02月07日
小区:九鼎城 面积:130㎡ 户型:三居 风格:简欧风格
设计说明
本案是一家六口住在一起的业主,夫妻两个,有一个上小学的孩子,老人夫妻俩也跟他们住在一起,平日里大家都去上班老人在家做饭,打扫家务,男主人由于工作原因晚上经常加班,就特意在加了书房,平日里在书房里加班,也不打扰大家休息,白天老人在书房里看报,写个毛笔字,白天算是老人的休闲室,整个家里的色调相对来说颜色深一点,地面颜色浅一点,更沉稳一些,显得家里比较有层次感 |
加上软装配式,更显得大气沉稳。
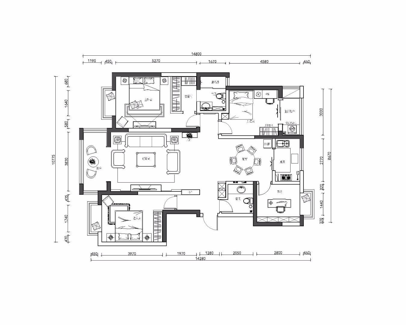
户型图

客厅




餐厅

休闲区





京公安网备11010502040911