160㎡三居新中式风格东尚观湖
发布时间:
2017年02月07日
小区:东尚观湖 面积:160㎡ 户型:三居 风格:新中式风格
设计说明
本案是孩子为孝敬老人,给老人买的房子,平日里老俩在房子里生活,偶尔孩子回家,给孩子留了一间客房,还有一个卧室做成了休闲室,老俩平日里在家无聊,可以约上几个朋友到家里娱乐,由于房子住的是老人,在卫生间的地方加了很多安全扶手,还有紧急按钮,避免有个突发情况,整个风格是一个新中式风格,是按照老人的喜欢的风格来设计的,餐厅做了一个圆桌,每当逢年过节的时候儿孙回家过节坐在圆桌上吃饭,寓意也很好,团团圆圆的,客厅电视墙用的石材做的,配上中式的家具,更显沉稳大气整个房子的软装配饰也是围绕新中式风格来搭配的。 |
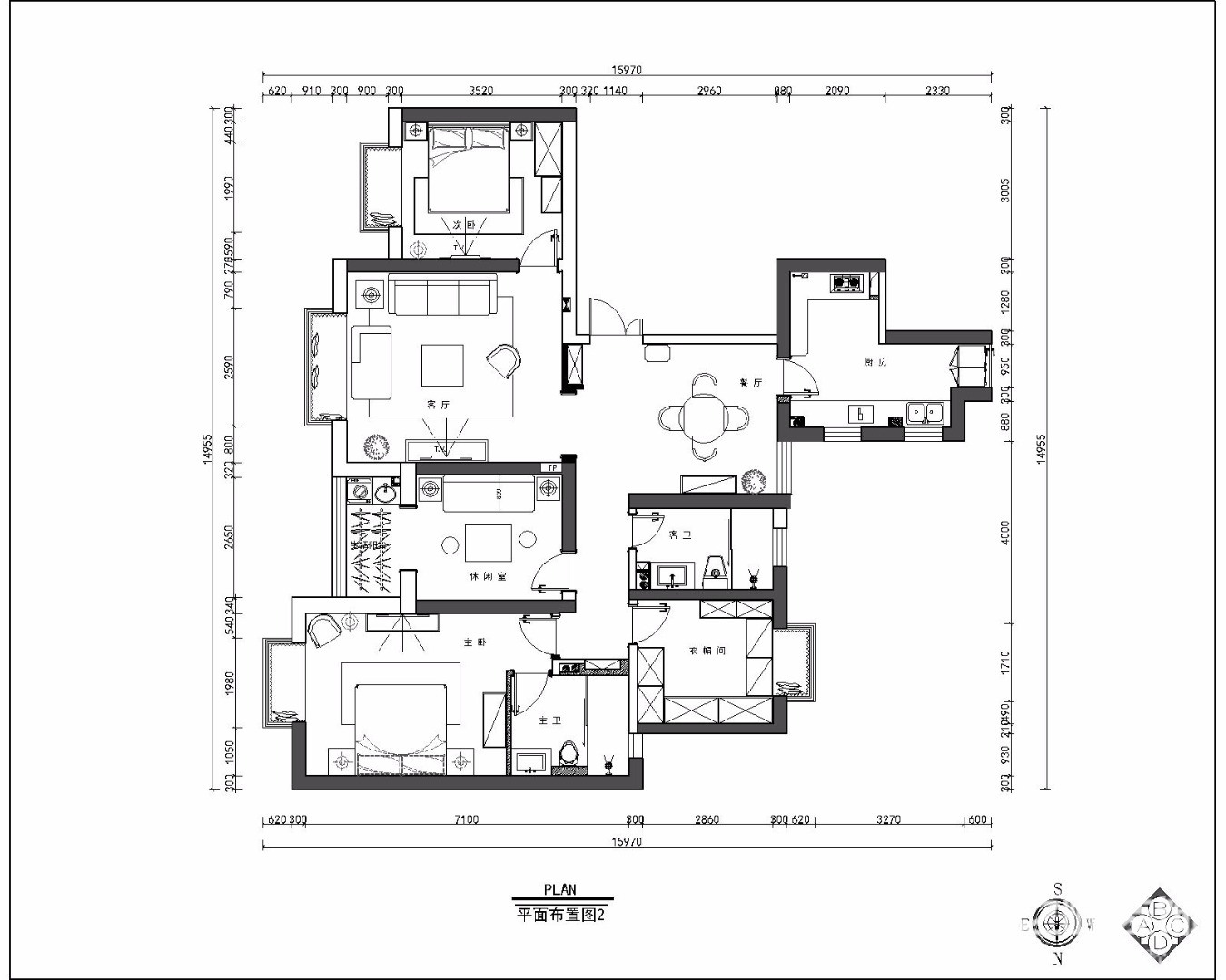
户型图

客厅



卧室

餐厅

卫生间





京公安网备11010502040911