115㎡二居北欧风格曲江观邸
发布时间:
2017年02月06日
小区:曲江观邸 面积:115㎡ 户型:二居 风格:北欧风格
设计说明
本案客厅经过精心的布置,让身处其境的人由衷感受到一种浑厚的气息围绕着自己。为了配合整个空间色调的合理搭配,设计师在主的天花板正中特意设计,从不同角度影射着窗帘、墙纸的色彩。每当夜晚来临时,柔和的灯光就会散开,缓缓流向客厅的各处。
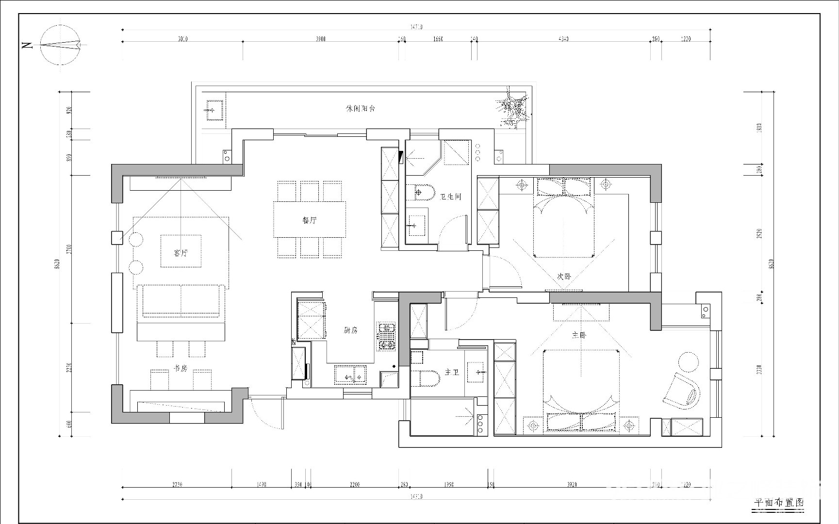
户型图

客厅


卧室

休闲区

卫生间

厨房





京公安网备11010502040911