北京
【切换】
整屋案例
家居美图
实景案例
装修现场
装修攻略
无数据
搜索
010-84934479
扫码快速拨号 >
扫码快速拨号
首页
效果图
设计师
装修现场
装修攻略
品质保障
了解业之峰
当前位置:
首页
装修图库
案例相册
165㎡四居领秀公馆
发布时间: 2017年02月06日
小区:领秀公馆
面积:165㎡
户型:四居
风格:
设计说明
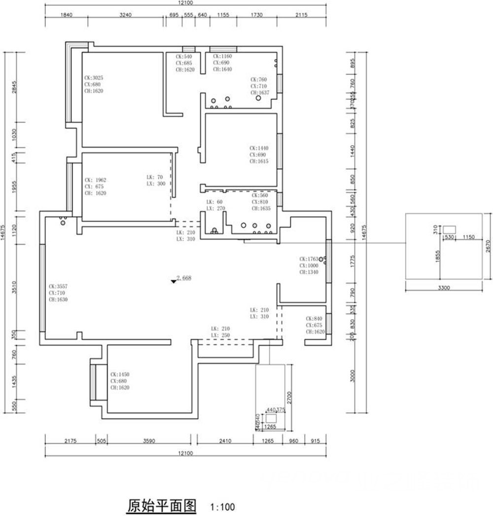
户型图
客厅
休闲区
餐厅
衣帽间
卧室
玄关
设计说明
户型图
客厅
休闲区
餐厅
衣帽间
卧室
玄关
本案设计师
陈建伟
高级设计师
免费咨询
我家装成这样多少钱?
㎡
获取报价
相关案例推荐
127㎡四居现代简约风格万科知园
查看详情
145㎡四居轻奢风格龙湖翠微清波
查看详情
160㎡四居现代简约风格红星·紫御半山
查看详情
118㎡四居现代简约风格旭景清园
查看详情
160㎡四居现代简约风格恒信·东城名筑
查看详情
170㎡四居现代简约风格凤华·百丽澜庭
查看详情
143㎡四居新中式风格南山两河峯景
查看详情
139㎡四居现代简约风格锦云天府
查看详情
178㎡四居现代简约风格北大资源紫境东来项目
查看详情
123㎡四居现代简约风格电建地产泷悦长安
查看详情
141㎡四居意式极简金域尚府
查看详情
260㎡四居意式极简青特缦云
查看详情
143㎡四居中古风格绿城锦玉园
查看详情
180㎡四居轻奢风格红星天铂
查看详情
143㎡四居中古风格绿城锦玉园
查看详情
150㎡四居现代简约风格团结村
查看详情
143㎡四居现代简约风格景寓学府
查看详情
140㎡四居现代简约风格华润置地紫云府
查看详情
265㎡四居现代简约风格天正银河湾
查看详情
180㎡四居意式极简红星天铂
查看详情
展开
报价计算器
免费量房
免费设计
回到顶部