78㎡二居现代简约风格海亮·新英里
发布时间:
2017年02月06日
小区:海亮·新英里 面积:78㎡ 户型:二居 风格:现代简约风格
设计说明
此方案以简洁的表现形式来满足客户对空间环境那种感性的、本能的需求。本案以白色和褐色为基调,将美观性与功能性相结合,重点营造简洁、时尚、典雅的住宅空间。此方案客、餐厅没有做刻意的空间分割,客、餐厅墙面和顶面都采用洁净的暖褐色,整个空间明亮舒适,经久耐看。地面、顶面、墙面没有复杂的造型,重点在于材料的选择和运用,乳胶漆墙面配合典雅的装饰画为空间增添了很多优雅色彩,地面采用釉面砖体现空间的整洁性;让整体视觉更加自然且富有韵律感。
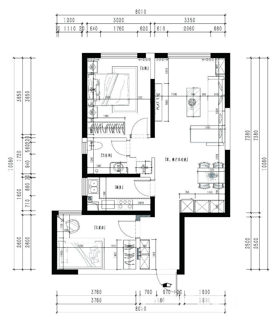
户型图

客厅






餐厅





京公安网备11010502040911