335㎡别墅新中式风格浣花里100号
                  发布时间:
                  2016年12月28日
                
 小区:浣花里100号 面积:335㎡ 户型:别墅 风格:新中式风格
设计说明
 本案位于浣花溪公园附近,倚着流水淙淙、碧绿清澈的浣花溪而建,低调古朴的灰色系建筑,被乌木色的房檐、柱子和窗棂勾画出轮廓。在这种充满“日落看归鸟,潭澄羡跃鱼”的意境中中式风格自然是最好的选择,舍弃浮华、线条明朗、色彩柔和,以朴实的中式设计元素配以现代简约风格的材质,营造出东方风格宁静儒雅相结合的完美气质。让客户能在家喝茶、读报,一切从容安详,享受天伦之乐。
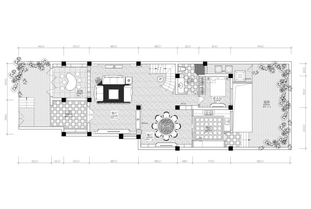
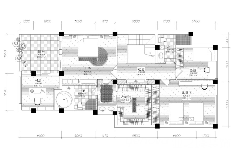
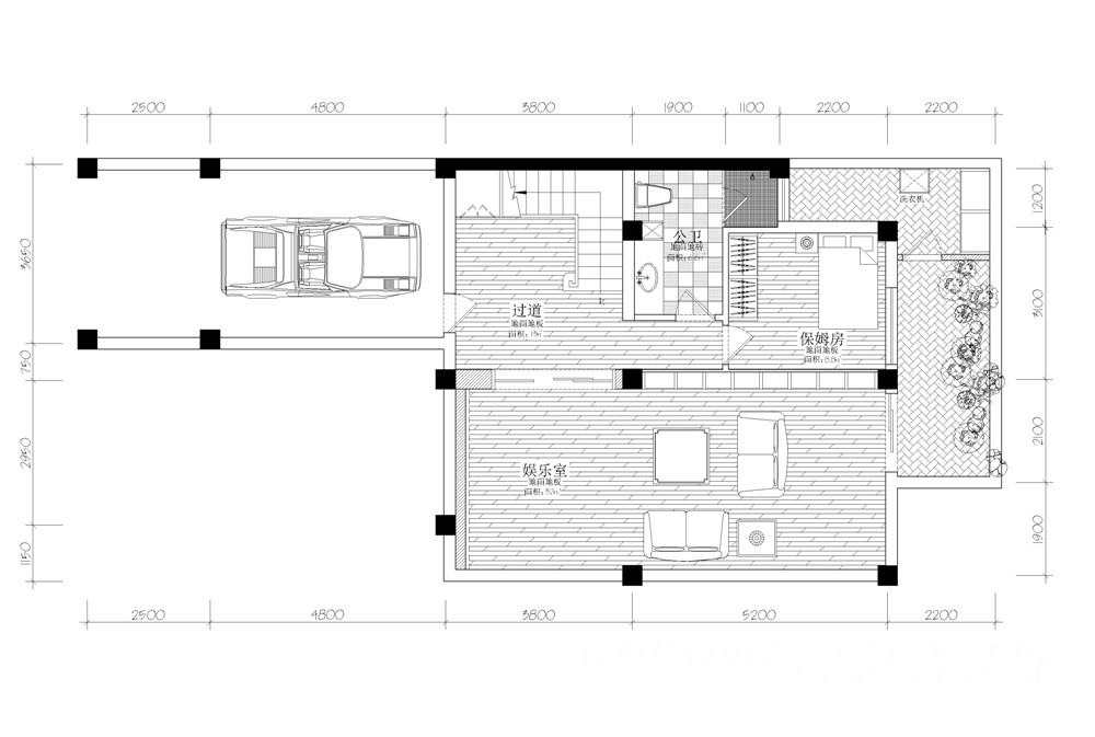
户型图
 
客厅
 




餐厅
 
休闲区
 
书房
 

 


京公安网备11010502040911