179㎡平层简欧风格保利贝森公馆
发布时间:
2016年12月28日
小区:保利贝森公馆 面积:179㎡ 户型:平层 风格:简欧风格
设计说明
本设计方案属于欧式风格。传统与现代两元素的完美结合,简约而不简单、韵味十足又不乏实用性。不管是客厅还是卧室,顶面运用了极有层次感的线条,卧室立面造型结合了韵味十足的皮纹软包,两者巧妙融合
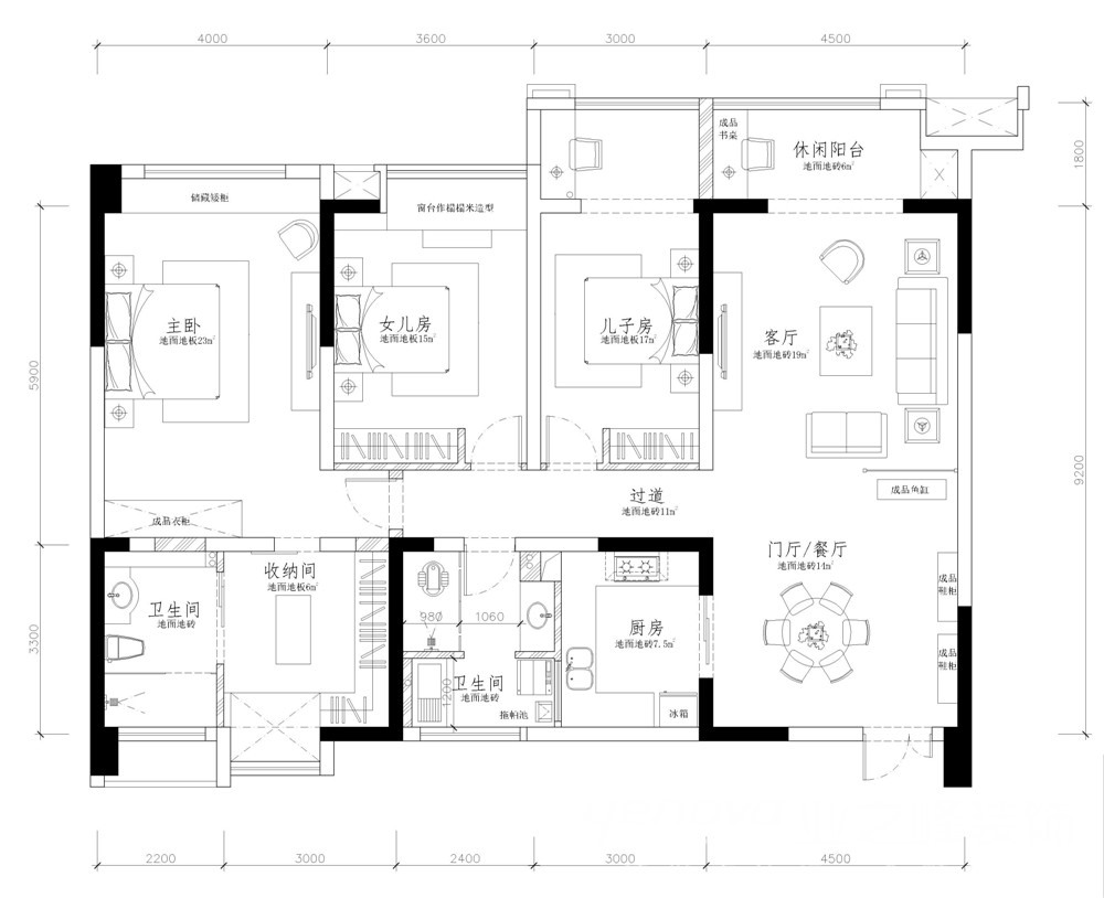
户型图

卧室

客厅


卫生间

本设计方案属于欧式风格。传统与现代两元素的完美结合,简约而不简单、韵味十足又不乏实用性。不管是客厅还是卧室,顶面运用了极有层次感的线条,卧室立面造型结合了韵味十足的皮纹软包,两者巧妙融合




