130㎡三居简欧风格盛邦大都会
发布时间:
2016年12月27日
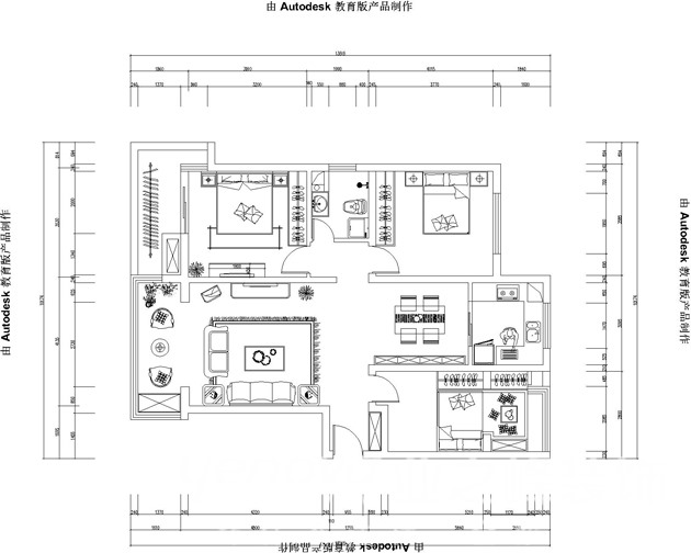
小区:盛邦大都会 面积:130㎡ 户型:三居 风格:简欧风格
设计说明
设计师以欧式为空间的主导风格,用简约的塑造方式,简化欧式繁复的线条。淡化了欧式的富丽堂皇,吸取其舒适情怀。配合简单淡雅墙面壁纸,让空间弥散出淡淡的温馨,同时给人与优雅的视觉感受。搭配上新古典的家具,让家少一份浮华,更多了一份历史与归属感
户型图

客厅




餐厅

卫生间





京公安网备11010502040911