220㎡五居美式风格华侨城
发布时间:
2016年12月27日
小区:华侨城 面积:220㎡ 户型:五居 风格:美式风格
设计说明
美的家居环境。重点是家具的精心摆放和选择陈设品,简化室内的装饰要素,可以使人的眼睛自由游荡,空间本身就是一个视觉放松的地方,让空间中的重点富有活力,除提供仅有的必需用品外,不在放置其它东西,设计的本质是使房间的气氛和主人的生活更加自由。
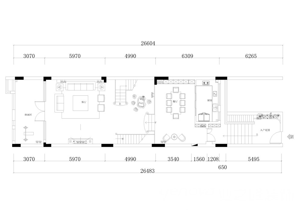
户型图

客厅



卧室


餐厅

儿童房





京公安网备11010502040911