138㎡三居美式风格东胜紫御府
发布时间:
2016年12月23日
小区:东胜紫御府 面积:138㎡ 户型:三居 风格:美式风格
设计说明
风格定义为美式休闲,没有欧式风格的奢华,不失欧式风格的气质,没有现代风格的简约,却也彰显着线条交错的美感,本案大面积运用线条,铸就主体风格,配饰,随意摆放的抱枕,风扇灯等,都透露出休闲美式独有的家的味道。
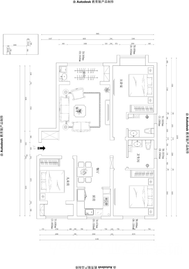
户型图

客厅




餐厅

卫生间






京公安网备11010502040911