245㎡别墅新中式风格碧桂园
发布时间:
2016年12月22日
小区:碧桂园 面积:245㎡ 户型:别墅 风格:新中式风格
设计说明
本方案是新中式风格为主,新中式风格诞生于中国传统文化复兴的新时期,伴随着国力增强,民族意识逐渐复苏,人们开始从纷乱的“摹仿”和“拷贝”中整理出头绪。在探寻中国设计界的本土意识之初,逐渐成熟的新一代设计队伍和消费市场孕育出含蓄秀美的新中式风格。在中国文化风靡全球的现今时代,中式元素与现代材质的巧妙兼柔,明清家具、窗棂、布艺床品相互辉映,再现了移步变景的精妙小品
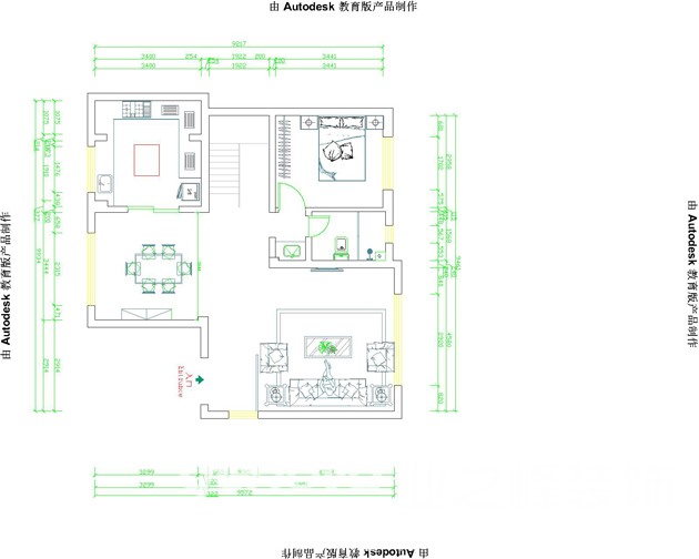
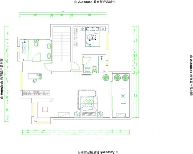
户型图

餐厅


休闲区

卧室


客厅






玄关


书房





京公安网备11010502040911