400㎡别墅新中式风格中海铂宫
发布时间:
2016年12月21日
小区:中海铂宫 面积:400㎡ 户型:别墅 风格:新中式风格
设计说明
业主长期在外,房子要是给兄妹和父母住的,考虑到业主父母年纪大了,把一楼客厅位置加建成了一个父母房,方便家里人照顾,二楼通过建,增加了了一个阳光房,采光性更好,空间更大,色彩以深色沉稳为主,因中式家具色彩一般比较深,这样整个居室色彩才能协调。再配以红色或黄色的靠垫、坐垫就可烘托居室的氛围,这样也可以更好的表现古典家具的内涵。空间上讲究层次,多用隔窗、屏风来分割。用实木做出结实的框架,以固定支架,中间用棂子雕花,做成古朴的图案。
门窗对确定中式风格很重要,因中式门窗一般均是用棂子做成方格或其它中式的传统图案。用实木雕刻成各式题材造型,打磨光滑,富有立体感。 天花以木条相交成方格形,上覆木板,也可做简单的环形的灯池吊顶,用实木做框,层次清晰,漆成花梨木色。
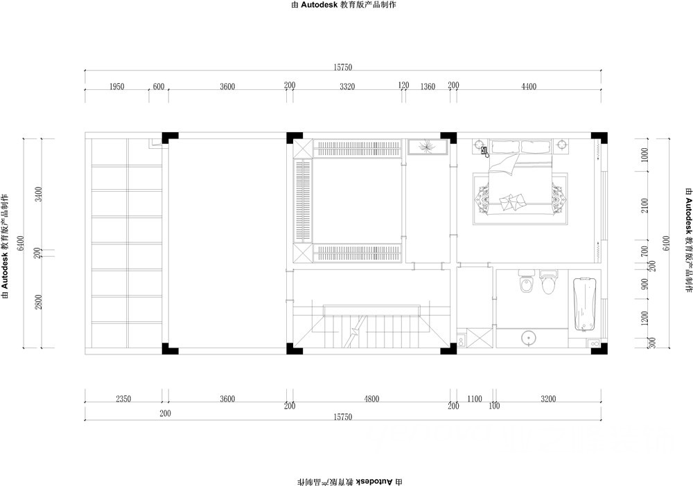
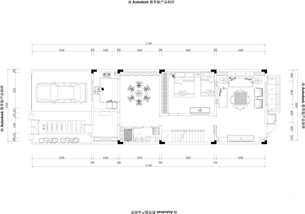
户型图

客厅












玄关


儿童房


卧室












楼梯

书房



餐厅







京公安网备11010502040911