北京
【切换】
整屋案例
家居美图
实景案例
装修现场
装修攻略
无数据
搜索
010-84934479
扫码快速拨号 >
扫码快速拨号
首页
效果图
设计师
装修现场
装修攻略
品质保障
了解业之峰
当前位置:
首页
装修图库
案例相册
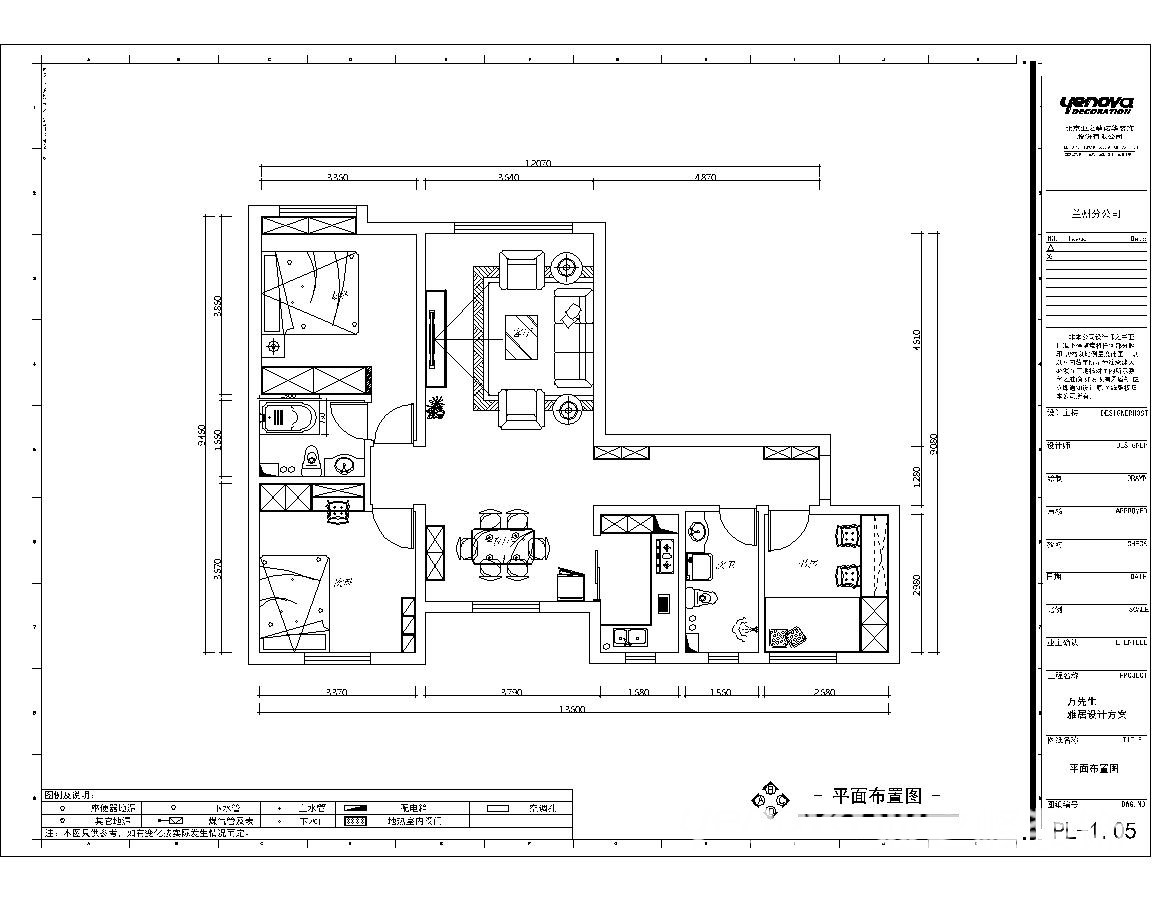
115㎡三居简欧风格中海河山郡
发布时间: 2016年12月19日
小区:中海河山郡
面积:115㎡
户型:三居
风格:简欧风格
设计说明
户型图
客厅
设计说明
户型图
客厅
本案设计师
吴玲
副主任设计师
免费咨询
我家装成这样多少钱?
㎡
获取报价
相关案例推荐
140㎡三居简欧风格金塘瑞景
查看详情
155㎡三居简欧风格紫薇田园都市
查看详情
155㎡三居简欧风格南望山庄
查看详情
137.73㎡三居简欧风格健强新里
查看详情
140㎡三居简欧风格逸居印象
查看详情
112㎡三居简欧风格新城小区
查看详情
200㎡三居简欧风格天安明郡
查看详情
100㎡三居简欧风格盛达国际新城
查看详情
126㎡三居简欧风格龙湖·春江郦城
查看详情
140㎡三居简欧风格四建美林苑
查看详情
93㎡三居简欧风格格调松间
查看详情
121㎡三居简欧风格静德花园
查看详情
170㎡三居简欧风格国际城
查看详情
135㎡三居简欧风格中凯龙城
查看详情
237㎡三居简欧风格紫泉庭苑
查看详情
128㎡三居简欧风格天福绿洲
查看详情
134㎡三居简欧风格海德公园
查看详情
121㎡三居简欧风格招商依云曲江
查看详情
130㎡三居简欧风格意境兰庭
查看详情
160㎡三居简欧风格格调平园
查看详情
展开
报价计算器
免费量房
免费设计
回到顶部